Chain-free three-bedroom with handy shops, schools and fast links.
No onward chain — ready for quick completion
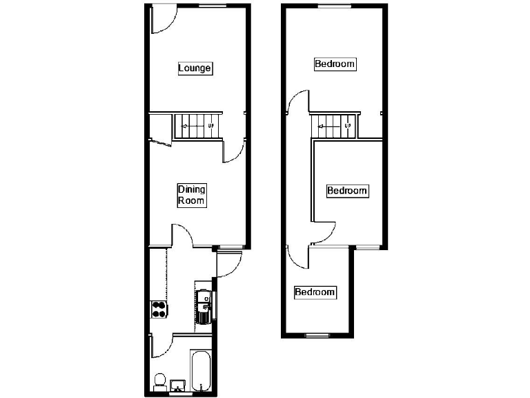
Three bedrooms with two reception rooms, compact but functional
Small rear garden with gated access and timber shed
Mains gas boiler and radiators; double glazing installed pre-2002
Front elevation and decor need modernising
Solid brick walls likely without cavity insulation
Located near shops, schools, and good transport links
Area classified as deprived — consider long-term demand
This chain-free mid-terrace offers an accessible step onto the property ladder or a straightforward buy-to-let in Felixstowe. Two reception rooms, a fitted kitchen and a modern bathroom mean the house is habitable from day one while still offering scope to personalise and add value.
Rooms are compact but well laid out: a generous front double bedroom, two further bedrooms and a rear lounge open to a small, low-maintenance garden. The property benefits from mains gas central heating, double glazing and a recent bathroom, keeping running costs predictable. Council tax is relatively low for the area.
The house does need some modernisation to reach its full potential. The front elevation and internal decor are dated, the front garden and boundary wall would benefit from renovation, and the solid brick walls likely lack insulation. Double glazing appears to pre-date 2002. The wider neighbourhood is classified as more deprived, so buyers should consider long-term local demand if purchasing as an investment.
For a first-time buyer this is a practical, affordable opportunity close to shops, schools and transport links. For an investor the property’s compact layout, rental potential and no onward chain make it straightforward to refurbish and re-let. Buyers should factor modest renovation costs to modernise finishes and improve insulation where desired.
3 bedroom house for sale in Graham Road, Felixstowe, IP11 — £249,995 • 3 bed • 1 bath • 754 ft²
3 bedroom terraced house for sale in Tacon Road, Felixstowe, IP11 — £205,000 • 3 bed • 1 bath • 840 ft²
3 bedroom end of terrace house for sale in Gosford Way, Old Felixstowe, IP11 — £275,000 • 3 bed • 1 bath • 850 ft²
3 bedroom terraced house for sale in Holland Road, Felixstowe, IP11 — £250,000 • 3 bed • 1 bath • 646 ft²
2 bedroom end of terrace house for sale in Hamilton Street, Felixstowe, Suffolk, IP11 — £180,000 • 2 bed • 1 bath • 646 ft²
3 bedroom terraced house for sale in Wentworth Drive, Felixstowe, IP11 — £310,000 • 3 bed • 1 bath • 894 ft²






























































