Move-in ready three-bedroom home with courtyard garden and beach access for families.
- Short walk to Felixstowe seafront and town centre
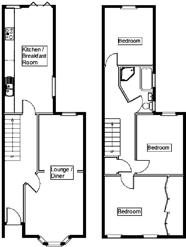
- Spacious 27ft through lounge with bay window and woodburner
- Large 22ft kitchen/diner with integrated appliances and bi-fold doors
- Three double bedrooms and four-piece family bathroom
- Chain free and mains gas central heating via Vaillant combi
- Solid brick walls, no assumed cavity insulation; retrofit likely beneficial
- Double glazing installed before 2002 — potential thermal upgrade needed
- Area shows above-average crime and local economic deprivation
Set just a short walk from Felixstowe seafront, this three-bedroom Edwardian terrace combines generous room proportions with period character. The ground-floor bay and 27ft through lounge create a welcoming living area, while the 22ft kitchen/diner with bi-fold doors opens onto a sunny, low-maintenance courtyard — ideal for indoor-outdoor family living and entertaining.
The house is offered chain free and has many practical updates: a modern Vaillant gas combi boiler, double glazing throughout, and a well-equipped fitted kitchen with integrated appliances. The master bedroom benefits from built-in wardrobes; two further double bedrooms and a large four-piece bathroom make the layout genuinely family-friendly. Overall footprint is compact (c.646 sq ft) but rooms are well-proportioned for the size.
Buyers should note the property sits in an area with above-average recorded crime and local economic deprivation; these factors may affect resale or rental demand. The building is solid-brick with assumed lack of cavity insulation and glazing appears to pre-date 2002, so there is potential for energy-efficiency improvements. The plot and front garden are small and the house typifies a terraced, inner-street setting without long-range views.
For families or first-time buyers seeking a move-in-ready home near the beach with scope to add value, this home offers immediate comfort plus upgrade potential. Investors should weigh the attractive location against local area indicators and consider efficiency improvements to enhance returns.
3 bedroom terraced house for sale in Tacon Road, Felixstowe, IP11 — £205,000 • 3 bed • 1 bath • 840 ft²
4 bedroom terraced house for sale in Langer Road, Felixstowe, Suffolk, IP11 — £230,000 • 4 bed • 1 bath • 1208 ft²
4 bedroom town house for sale in Herman De Stern Walk, Felixstowe IP11 — £295,000 • 4 bed • 2 bath • 810 ft²
3 bedroom house for sale in Graham Road, Felixstowe, IP11 — £249,995 • 3 bed • 1 bath • 754 ft²
3 bedroom terraced house for sale in Felix Road, Felixstowe, IP11 — £350,000 • 3 bed • 2 bath • 768 ft²
3 bedroom detached house for sale in Garrison Lane, Felixstowe, IP11 — £318,500 • 3 bed • 1 bath • 1064 ft²














































































































