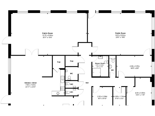
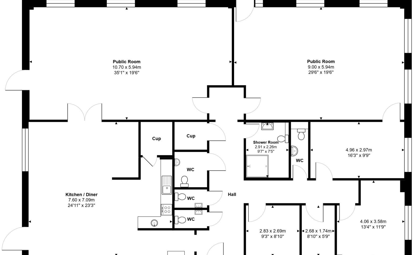
**Standout Features:**
- Spacious single-storey office pavilion (2,340 sq ft)
- 11 allocated parking spaces
- Planning consent for an additional 1,421 sq ft in the attic
- Modern facilities including a large kitchen, lounge, conference room, therapy room, and sensory room
- Located in a landscaped business park, just 25 miles from Edinburgh
- Excellent mobile signal, nearby amenities for convenience
**Potential Concerns:**
- Broadband speeds are reportedly slow
- Area may have reputational concerns due to classification as deprived
Discover a unique opportunity to invest in this spacious single-storey office pavilion located in Cavalry Business Park. Extending to 2,340 sq ft, this property boasts modern amenities such as a size-able kitchen and dining area, multiple purpose-specific rooms, and 11 dedicated parking spaces—ideal for a growing business. With planning consent secured for an additional 1,421 sq ft in the attic, the potential for expansion is significant, making this an attractive option for forward-thinking investors or businesses seeking to scale.
Nestled in an established, well-maintained business park, this office is conveniently located just 25 miles southeast of Edinburgh, providing both tranquility and accessibility. While the office is in good condition overall, potential buyers should note the area’s slow broadband speeds and consider the implications. Enjoy the benefits of nearby amenities within walking distance, catering to both professional needs and employee well-being.
Don't miss your chance to secure this versatile property—it is an ideal investment for those looking to create a dynamic business environment or for future rental potential.
Commercial property for sale in Commercial Premise At 3 Rowan Court, Cavalry Park, Peebles, EH45 9BU, EH45 — £350,000 • 1 bed • 5 bath • 2809 ft²
Commercial development for sale in Land South Of 3 Rowan Court, Cavarly Park, Peebles, EH45 9BU, EH45 — £30,000 • 1 bed • 1 bath • 504 ft²
Commercial property for sale in Boiler & Engine House, Ballantyne Place, Peebles, EH45 8ER, EH45 — £120,000 • 1 bed • 1 bath • 8392 ft²
Property for sale in Former Boiler House and Engine Shed, Ballantyne Place, March Street Mill, EH45 — £120,000 • 1 bed • 1 bath
5 bedroom end of terrace house for sale in 7 Castlehill Coutyard, Kirkton Manor, Peebles, EH45 9JN, EH45 — £450,000 • 5 bed • 4 bath • 2438 ft²
1 bedroom flat for sale in 6 Craigerne House, Craigerne Drive, Peebles, EH45 9HG, EH45 — £240,000 • 1 bed • 1 bath • 638 ft²










































