Energy-efficient semi with allocated parking and compact, practical living for small families.
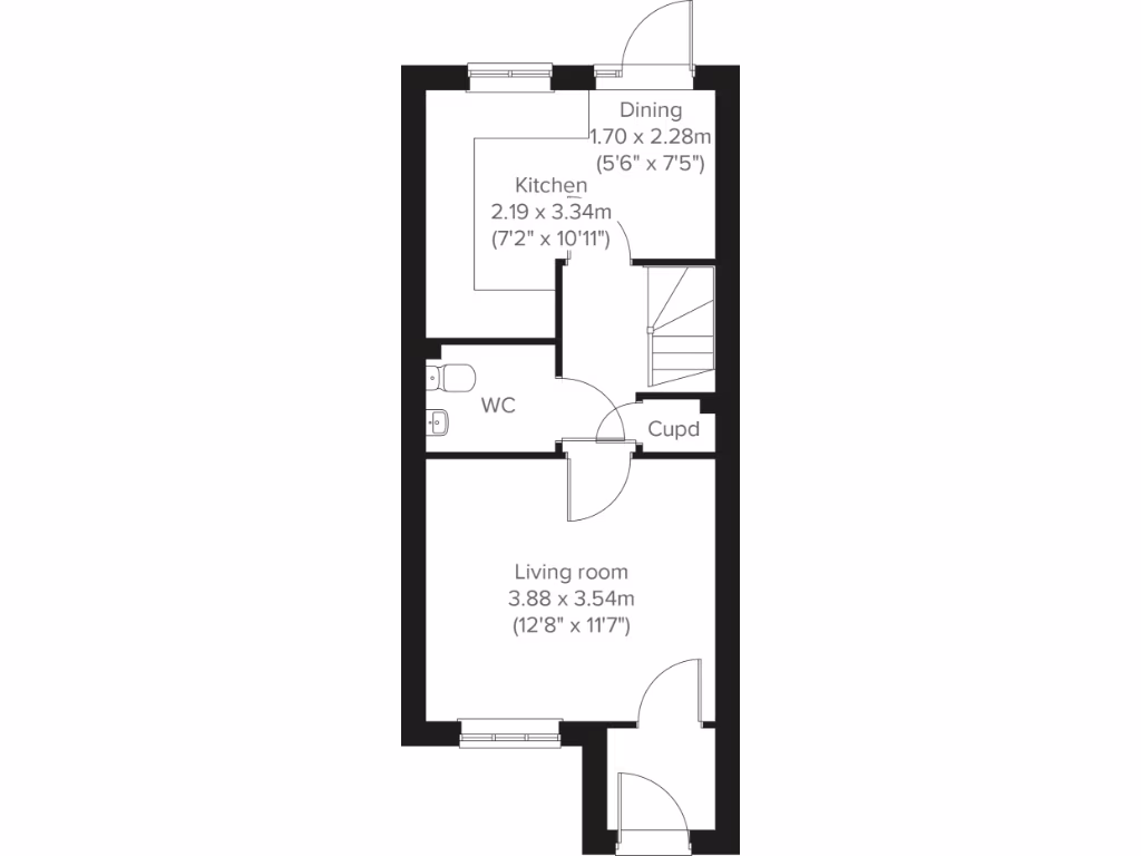
Open-plan kitchen/dining with direct garden access
A compact, modern three-bedroom semi-detached home arranged over three storeys, built as part of a recent development. The ground floor offers an open-plan kitchen/dining room with outside access and a front-aspect living room, plus an enclosed porch and downstairs WC for everyday convenience. The top-floor principal bedroom benefits from an en suite, and three built-in storage cupboards help maximise space in a small footprint.
This property is energy efficient and comes with allocated off-street parking, making running costs and weekday routines straightforward. Room sizes are modest (total internal area about 656 sq ft) so the layout suits a small family, couple or first-time buyers wanting low-maintenance living rather than expansive rooms or large gardens. Broadband speeds are fast and mobile signal is excellent.
Buyers should note practical constraints: the overall plot and internal space are small, and the local area is classified as very deprived with above-average crime — factors to consider for families prioritising local services and security. Council tax band will be set after occupation. As a new build, the home will have contemporary finishes but limited mature landscaping and smaller garden space compared with older family homes.
3 bedroom semi-detached house for sale in Queensgate,
Welsh Road,
Deeside,
Flintshire,
CH5 2HJ, CH5 — £269,995 • 3 bed • 1 bath • 656 ft²
3 bedroom semi-detached house for sale in Queensgate,
Welsh Road,
Deeside,
Flintshire,
CH5 2HJ, CH5 — £234,995 • 3 bed • 1 bath • 547 ft²
3 bedroom detached house for sale in Queensgate,
Welsh Road,
Deeside,
Flintshire,
CH5 2HJ, CH5 — £284,995 • 3 bed • 1 bath • 368 ft²
3 bedroom semi-detached house for sale in Queensgate,
Welsh Road,
Deeside,
Flintshire,
CH5 2HJ, CH5 — £234,995 • 3 bed • 1 bath • 547 ft²
4 bedroom detached house for sale in Queensgate,
Welsh Road,
Deeside,
Flintshire,
CH5 2HJ, CH5 — £329,995 • 4 bed • 1 bath • 380 ft²
3 bedroom house for sale in Welsh Road,
Garden City,
Deeside,
CH5 2RA, CH5 — £252,995 • 3 bed • 1 bath • 818 ft²














































