New-build, energy-efficient three-bedroom home with driveway and en suite—ideal for first-time buyers.
Three bedrooms with top-floor principal and en suite
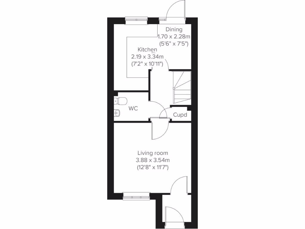
Bright, compact and newly built, this three-bedroom semi-detached home suits first-time buyers or small families seeking low-maintenance modern living. The open-plan kitchen/dining area opens onto the rear garden, while a separate front-aspect living room keeps everyday and entertaining space distinct. The top-floor principal bedroom benefits from an en suite, and three useful storage cupboards add practical everyday space.
At around 656 sq ft, the layout is efficient rather than expansive — rooms are well-proportioned but the overall footprint is small. The house is energy efficient and fitted with contemporary fixtures, which helps running costs and reduces immediate maintenance. Off-street parking and a modest front garden add kerb appeal and convenience.
Buyers should note the property sits in an area with above-average crime and high levels of local deprivation; prospective purchasers may wish to check local services and insurance implications. Council tax banding is not yet confirmed until occupation. As a new-build freehold, the house will appeal to buyers wanting a modern, low-upkeep home, but those needing larger living areas or gardens should compare size and layout carefully.
3 bedroom semi-detached house for sale in Queensgate,
Welsh Road,
Deeside,
Flintshire,
CH5 2HJ, CH5 — £239,995 • 3 bed • 1 bath • 319 ft²
3 bedroom town house for sale in Kenneth Cross Way, Sealand, Deeside, CH5 — £256,500 • 3 bed • 1 bath • 1141 ft²
3 bedroom semi-detached house for sale in Walkham Court, Gwersyllt, LL11 — £200,000 • 3 bed • 2 bath • 872 ft²
3 bedroom semi-detached house for sale in Ffordd Bailey, Sealand, CH5 — £250,000 • 3 bed • 3 bath • 821 ft²
4 bedroom detached house for sale in Queensgate,
Welsh Road,
Deeside,
Flintshire,
CH5 2HJ, CH5 — £319,995 • 4 bed • 1 bath • 1500 ft²
3 bedroom semi-detached house for sale in Welsh Road,
Garden City,
Deeside,
CH5 2RA, CH5 — £284,995 • 3 bed • 1 bath • 1015 ft²














































