DE14 3FW - 3 bedroom detached house for sale in Acacia Lane, Branston,…

View on Property Piper

3 bedroom detached house for sale in Acacia Lane, Branston, Burton-On-Trent, DE14 3FW, DE14

Summary - Acacia Lane, Branston, Burton-On-Trent, DE14 3FW DE14 3FW

3 bed 1 bath Detached

Modern, energy-efficient three-bed home with garage and garden — ideal for families or downsizers..
Open-plan kitchen-diner with integrated appliances and French doors
Main bedroom with en-suite and built-in wardrobe
Two private parking spaces plus single detached garage
Energy-efficient features including solar panels and gas central heating
Compact internal area (approx. 641 sq ft) — modest room sizes
New-build specification; low maintenance interior finishes
Low flood risk; fast broadband and affluent local area
Local crime reported above average — consider security measures
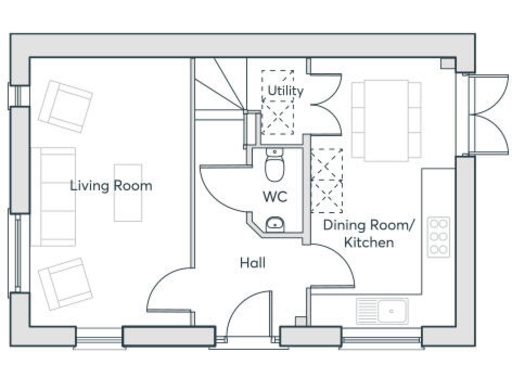
This three-bedroom detached new-build on Acacia Lane offers modern, efficient family living in a pleasant suburban setting. The ground floor features an open-plan kitchen-diner with integrated appliances and French doors that open onto the garden, plus a separate living room and downstairs cloakroom — practical for everyday family use and entertaining.

The main bedroom includes a built-in wardrobe and an en-suite, with two further bedrooms and a fully fitted family bathroom upstairs. The property benefits from energy-efficient features (solar panels noted in imagery) and full gas central heating, helping running costs. Two private parking spaces and a single detached garage add useful off-street convenience.

Buyers should be aware the internal floorspace is compact (approximately 641 sq ft) and room sizes are modest; this is a medium/small family home rather than a large detached estate. Local crime is reported as above average — worth factoring into personal security preferences. Flood risk is low and the area is affluent with good local schools, making it suitable for families or downsizers seeking a modern, low-maintenance home.

In short: a contemporary, well-specified new-build with energy-efficient extras and practical parking, best suited to buyers who prioritise modern finishes and location over generous internal floor area.

Property Details

Brochure Descriptions

Image Descriptions

Rooms

Textual Property Features

Target Audience

AI Tags

Detected Visual Features

Nearby Schools

Nearest Bars And Restaurants

,,,,}

Nearest General Shops

,,}

Nearest Grocery shops

,,}

Nearest Supermarkets

,,}

Nearest Religious buildings

,,}

Nearest Medical buildings

,,,}

Nearest Airports

}

Nearest Leisure Facilities

,,,,}

Nearest Tourist attractions

,,}

Nearest Train stations

,,,,}

Nearest Bus stations and stops

,,,,}

Nearest Hotels

,,}

Tags

Local Market Stats

Similar Properties

Meta

High Res Images

Compatible Images

Low res Images

Thumbnails

Raw Images

High Res Floorplan Images

Compatible Floorplan Images

Low res Floorplan Images

FloorplanImages Thumbnail

Raw Floorplan Images