DE14 3FW - 3 bedroom detached house for sale in Acacia Lane, Branston,…

View on Property Piper

3 bedroom detached house for sale in Acacia Lane, Branston, Burton-On-Trent, DE14 3FW, DE14

Summary - Acacia Lane, Branston, Burton-On-Trent, DE14 3FW DE14 3FW

3 bed 1 bath Detached

Compact, energy-efficient family home with garage and two parking spaces.
New-build three-bedroom detached house with energy-efficient features
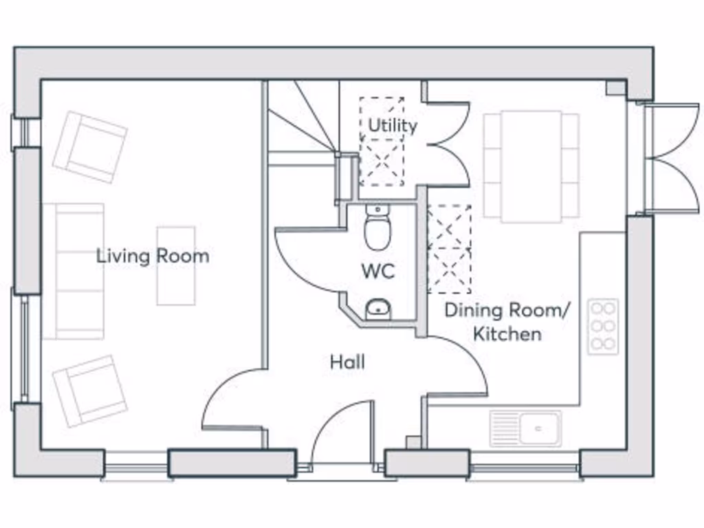
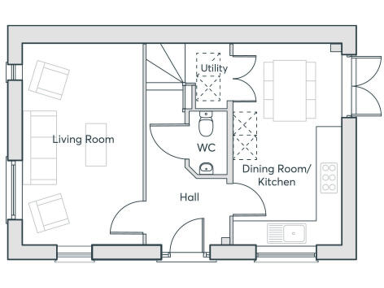
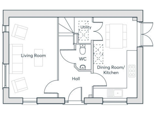
A compact, newly built three-bedroom detached house arranged for modern family life. The ground floor has an open-plan kitchen/dining area with integrated appliances and French doors to the garden, plus a separate living room and downstairs cloakroom. Upstairs, the main bedroom includes a built-in wardrobe and en-suite; two further bedrooms and a fully fitted family bathroom complete the sleeping accommodation.

Practical everyday benefits include two private parking spaces, a single detached garage, gas central heating and solar panels on a contemporary brick build. The property sits in a comfortable suburban setting (Branston) with good local schools and fast broadband — suited to a family wanting low-maintenance, energy-efficient living.

Be aware this is a small home overall (approximately 641 sq ft) on a large plot, so living spaces are compact. Crime statistics for the immediate area are above average; purchasers should check local safety data. Tenure is freehold and the new-build specification reduces short-term maintenance, but buyers should confirm any estate management obligations for the development.

Property Details

Brochure Descriptions

Image Descriptions

Floorplan Description

Rooms

Textual Property Features

Target Audience

AI Tags

Detected Visual Features

Nearby Schools

Nearest Bars And Restaurants

,,,,}

Nearest General Shops

,,}

Nearest Grocery shops

,,}

Nearest Supermarkets

,,}

Nearest Religious buildings

,,}

Nearest Medical buildings

,,,}

Nearest Airports

}

Nearest Leisure Facilities

,,,,}

Nearest Tourist attractions

,,}

Nearest Train stations

,,,,}

Nearest Bus stations and stops

,,,,}

Nearest Hotels

,,}

Tags

Local Market Stats

Similar Properties

Meta

High Res Images

Compatible Images

Low res Images

Thumbnails

Raw Images

High Res Floorplan Images

Compatible Floorplan Images

Low res Floorplan Images

FloorplanImages Thumbnail

Raw Floorplan Images