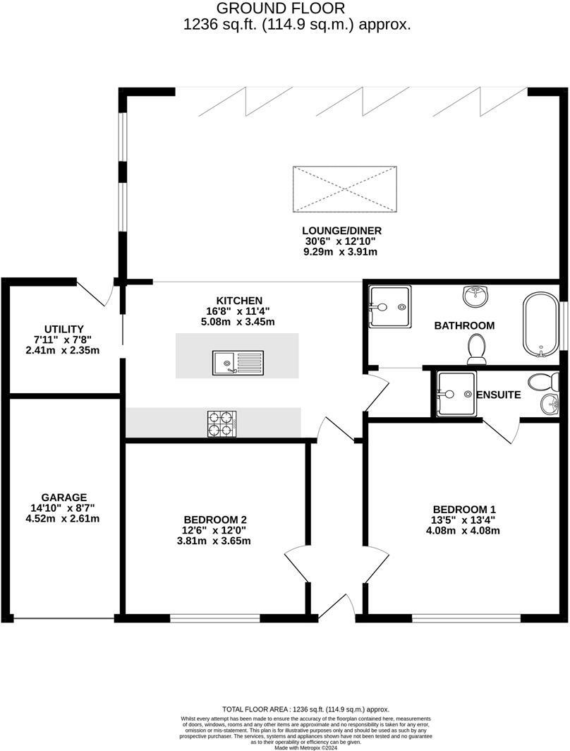
**Standout Features:**
- Newly renovated two-bedroom detached bungalow
- Contemporary open-plan living with bifold doors to garden
- Master bedroom with en suite, stylish four-piece bathroom
- Large garden, off-road parking, and garage
- Located in a quiet cul-de-sac in a popular area
- EPC Rating: C; low council tax band B
This immaculately presented two-bedroom detached bungalow in the tranquil cul-de-sac of Broughton is the epitome of modern living with its recent extensive renovations. Spanning an impressive 1,236 square feet, it boasts a spacious open-plan kitchen, dining, and living area bathed in natural light, perfect for entertaining or relaxing. The stylish bifold doors seamlessly connect the indoor space to a generous rear garden, ideal for outdoor gatherings.
The property features two spacious double bedrooms, including a master suite with an en suite shower room, and a sophisticated four-piece main bathroom with a freestanding bathtub, catering to both comfort and style. Additional conveniences include a separate utility room and ample off-road parking complemented by a garage. This bungalow is situated in an affluent area with low crime rates, excellent broadband speeds, and highly-rated local schools—perfect for families or investors seeking rental potential. Don’t miss this opportunity; they’re rare to find and won’t last long! Schedule your viewing today!
 3 bedroom bungalow for sale in Burnside, Broughton, Brigg, Lincolnshire, DN20 — £342,500 • 3 bed • 2 bath • 1820 ft²
 3 bedroom bungalow for sale in Burnside, Broughton, Brigg, Lincolnshire, DN20 — £342,500 • 3 bed • 2 bath • 1820 ft² 2 bedroom detached bungalow for sale in Badger Way, Brigg, DN20 — £210,000 • 2 bed • 1 bath • 937 ft²
 2 bedroom detached bungalow for sale in Badger Way, Brigg, DN20 — £210,000 • 2 bed • 1 bath • 937 ft² 2 bedroom bungalow for sale in Windsor Way, Broughton, Brigg, Lincolnshire, DN20 — £165,000 • 2 bed • 1 bath
 2 bedroom bungalow for sale in Windsor Way, Broughton, Brigg, Lincolnshire, DN20 — £165,000 • 2 bed • 1 bath 3 bedroom detached bungalow for sale in Pine Tree Close, Broughton, DN20 — £350,000 • 3 bed • 1 bath • 1479 ft²
 3 bedroom detached bungalow for sale in Pine Tree Close, Broughton, DN20 — £350,000 • 3 bed • 1 bath • 1479 ft² 2 bedroom detached bungalow for sale in South View, Broughton, DN20 — £290,000 • 2 bed • 1 bath
 2 bedroom detached bungalow for sale in South View, Broughton, DN20 — £290,000 • 2 bed • 1 bath 3 bedroom bungalow for sale in Barley Close, Hibaldstow, DN20 — £320,000 • 3 bed • 2 bath • 1076 ft²
 3 bedroom bungalow for sale in Barley Close, Hibaldstow, DN20 — £320,000 • 3 bed • 2 bath • 1076 ft²






















































































