Chain-free town house with exceptional parking and low-maintenance garden.
Chain free and ready to occupy
Off-street parking for up to four cars
Three double bedrooms, two reception rooms
Modern bathroom; kitchen/breakfast extension to rear
Spray foam insulation and double glazing present
Overall internal size modest (approx. 718 sq ft)
Plot small to average; mainly paved rear garden
Tenure and council tax band not specified
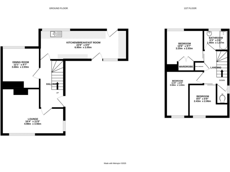
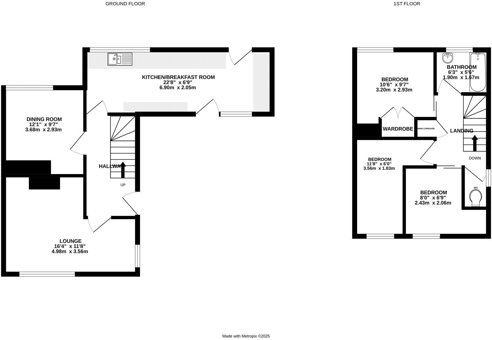
This three-bedroom end-of-terrace on Moorfield Road is offered chain free and ready for immediate occupation. The house benefits from two reception rooms, a modern bathroom, a kitchen/breakfast extension and generous off-street parking for multiple cars — a rare practicality in town-centre streets. A paved rear garden with shed and greenhouse provides low-maintenance outdoor space.
The property has been presented in good decorative order and includes spray foam insulation and double glazing, which help with warmth and running costs. Accommodation is well-zoned for family life: a larger front lounge, a separate dining room and three bedrooms upstairs. Total internal area is modest (approximately 718 sq ft), so it will suit buyers looking for compact, efficient living rather than expansive rooms.
Notable practical points are plain and factual: the plot and overall house footprint are small; some descriptions indicate cosmetic updating may still be desirable in places; tenure and council tax band are not specified; the property dates from the mid-20th century with solid brick walls (no built-in cavity insulation assumed). One nearby primary school is rated Inadequate by Ofsted while two others are rated Good, so school-choice should be checked by families.
Overall this home will appeal to first-time buyers or buy-to-let investors seeking a straightforward Exmouth property with strong parking, quick move-in potential and scope to add value through selective modernisation or reconfiguration. The guide price range is £300,000–£320,000.
3 bedroom semi-detached house for sale in Sylvan Close, Exmouth, Devon, EX8 — £300,000 • 3 bed • 1 bath • 885 ft²
3 bedroom end of terrace house for sale in Tower Walk, Exeter, Devon, EX2 — £280,000 • 3 bed • 1 bath • 753 ft²
3 bedroom semi-detached house for sale in Brooklands Road, Exmouth, EX8 — £265,000 • 3 bed • 1 bath • 893 ft²
4 bedroom semi-detached house for sale in Victoria Gardens, Exeter Road, Exmouth, Devon, EX8 — £450,000 • 4 bed • 2 bath • 1466 ft²
2 bedroom end of terrace house for sale in Wordsworth Close, Exmouth, Devon, EX8 — £220,000 • 2 bed • 1 bath • 534 ft²
3 bedroom terraced house for sale in Meadow View Road, Exmouth, Devon, EX8 — £270,000 • 3 bed • 1 bath • 758 ft²


























































































