Family-friendly period home with garden and renovation potential in Exmouth cul-de-sac.
- Bay-fronted lounge and separate dining room
- Good-size enclosed rear garden with patio and ornamental pond
- Off-street parking area located opposite the house
- Gas central heating and mostly double glazed
- Freehold and offered with no onward chain
- Requires updating and modernisation throughout
- High local flooding risk — obtain specialist insurance advice
- Small plot size; parking is not immediately adjacent
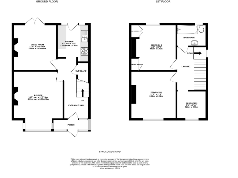
A bay-fronted three-bedroom semi-detached house in a quiet Exmouth cul-de-sac, offered with no onward chain. The layout provides a separate lounge and dining room, a functional kitchen, and a single bathroom — a straightforward family home with period character and scope to modernise.
Outside there is a good-sized rear garden with mature shrubs, a paved patio, ornamental pond and timber shed. Off-street parking is available on a stone-chip area opposite the house. The property is freehold, gas centrally heated with mostly double glazing and benefits from low local crime and fast broadband.
The house was built in the 1930s and shows mid-20th century fittings and finishes that will suit buyers wanting renovation potential rather than a move-in-ready home. Notable practical points: the plot is small, parking is across the road, and the rear garden contains an ornamental pond that will need upkeep. There is a high flooding risk for the area — buyers should obtain flood and insurance advice.
Local amenities include nearby schools, bus services and green space. Council Tax Band C keeps running costs reasonable. This property will appeal to families or buyers seeking a period home to update and add value, or investors looking for refurbishment opportunity with good rental and transport fundamentals.
3 bedroom semi-detached house for sale in Bradham Lane, Exmouth, EX8 — £315,000 • 3 bed • 1 bath • 969 ft²
3 bedroom semi-detached house for sale in Sylvan Close, Exmouth, Devon, EX8 — £300,000 • 3 bed • 1 bath • 885 ft²
3 bedroom terraced house for sale in Mead Cottages, Exmouth, EX8 — £220,000 • 3 bed • 1 bath • 1013 ft²
3 bedroom terraced house for sale in Green Close, Exmouth, Devon, EX8 — £280,000 • 3 bed • 1 bath • 948 ft²
4 bedroom semi-detached house for sale in Littlemead Lane, Exmouth, EX8 — £399,000 • 4 bed • 2 bath • 1349 ft²
3 bedroom end of terrace house for sale in Moorfield Road, Exmouth, EX8 — £300,000 • 3 bed • 1 bath • 718 ft²


























































