Spacious living, low-maintenance garden ideal for family life.
Open-plan kitchen/diner with utility room and integrated appliances
Large sitting room with bay window and French doors to garden
Master bedroom includes storage cupboard and ensuite shower
Enclosed, low-maintenance rear garden laid to artificial lawn
Single garage and driveway parking; no service charges
Modest overall internal size (approx. 934 sq ft)
Small plot size and compact rooms for some family needs
Local broadband speeds reported as slow; council tax above average
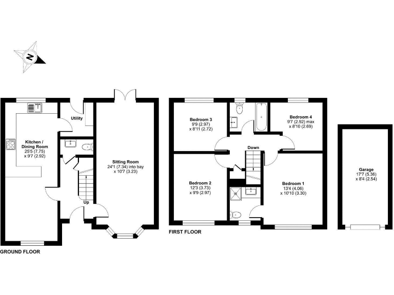
Set on the popular Cades Farm development, this well-presented four-bedroom detached house suits a growing family. The ground floor opens into a large sitting room with a walk-in bay window and French doors to an enclosed, low-maintenance rear garden laid to artificial lawn. The open-plan kitchen/dining area and adjacent utility create a practical hub for daily living and entertaining.
Upstairs there are four double bedrooms, including a master with built-in storage and an ensuite shower room. The family bathroom serves the remaining bedrooms. The home benefits from uPVC double glazing, gas central heating and a single garage with driveway parking. There are no estate service charges to pay.
Buyers should note the property sits on a relatively small plot and the overall internal size is modest at around 934 sq ft. Broadband speeds are reported as slow locally, and council tax is above average for the area. The neighbourhood is a mix of occupations and the wider area shows signs of economic deprivation despite low crime and good local schools, making this a sensible, practical choice for families prioritising space, convenience and low-maintenance outdoor areas.
4 bedroom detached house for sale in Pear Tree Way, Wellington, TA21 — £425,000 • 4 bed • 3 bath • 1439 ft²
3 bedroom semi-detached house for sale in Damson Row, Torres Vectras Drive, Wellington, Somerset, TA21 — £310,000 • 3 bed • 2 bath • 662 ft²
4 bedroom detached house for sale in Pear Tree Way, Wellington, TA21 — £369,950 • 4 bed • 2 bath • 1122 ft²
4 bedroom detached house for sale in Popham Road, Wellington, TA21 — £379,950 • 4 bed • 2 bath • 1482 ft²
4 bedroom detached house for sale in St. Quintin Park, Bathpool, Taunton, TA2 — £495,000 • 4 bed • 3 bath • 1507 ft²
4 bedroom detached house for sale in Warren Street, Monkton Heathfield, Taunton, TA2 — £385,000 • 4 bed • 2 bath • 1206 ft²










































































