Four bed detached with garage, low-maintenance garden and easy access to town amenities..
Four-bedroom detached family home with en-suite to master
Garage plus driveway parking for two vehicles
Kitchen/dining with French doors to garden
Home study / office and utility room on ground floor
Low-maintenance rear garden with patio and artificial lawn
Freehold tenure; no flood risk
Council tax above average; local area shows some deprivation
Fast broadband but average mobile signal
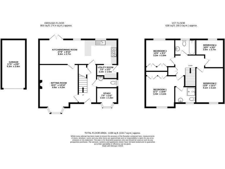
Comfortable, well-proportioned and practical, this four-bedroom detached house on Pear Tree Way suits family life. The ground floor offers a large sitting room with bay window and fireplace, a generous kitchen/dining area with French doors to the garden, a useful utility room, and a study ideal for a home office. Upstairs there are four good bedrooms, including a master with en-suite and a family bathroom.
Outside, the property sits back from the road with driveway parking for two and an attached garage with power and light. The rear garden is low-maintenance, with patio and artificial lawn providing space for children and outdoor entertaining without heavy upkeep. The home is freehold and shows average overall size with a decent plot for a modern estate property.
Location is a practical strength: Cades Farm position places supermarkets, bus routes and the town centre within easy walking distance, and local schools nearby have good or independent options. Broadband speeds are fast for working from home, though mobile signal is average in the area. Council tax is above average and the wider area shows pockets of deprivation — worth factoring into ongoing costs and local services.
This is a straightforward family home offering good living space, sensible outside storage and low-maintenance gardens. It will suit buyers seeking move-in-ready accommodation on a popular modern development, and those who value proximity to amenities and schools. Any buyer prioritising rural tranquillity or strong mobile reception may wish to check local coverage first.
4 bedroom detached house for sale in Pear Tree Way, Wellington, TA21 — £375,000 • 4 bed • 3 bath • 934 ft²
3 bedroom detached house for sale in Cades Mead, Wellington, Somerset, TA21 — £350,000 • 3 bed • 2 bath • 946 ft²
4 bedroom detached house for sale in Meyer Close, Wellington, TA21 — £344,950 • 4 bed • 2 bath • 1194 ft²
4 bedroom detached house for sale in Russet Close, Wellington, TA21 — £365,000 • 4 bed • 2 bath • 1199 ft²
4 bedroom detached house for sale in Pear Tree Way, Wellington, TA21 — £305,000 • 4 bed • 3 bath • 1241 ft²
4 bedroom detached house for sale in Andrew Allan Road, Rockwell Green, Wellington, TA21 — £360,000 • 4 bed • 2 bath • 1150 ft²










































































