Large two-bedroom Georgian flat with private front and rear courtyards and gated communal gardens.
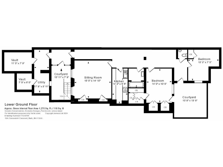
Approximately 1,270 sq ft — unusually large two-bedroom apartment
Set within one of Bath’s most desirable crescents, this substantial two-bedroom courtyard apartment combines classic Georgian character with generous living space. The property extends to approximately 1,270 sq ft and includes a large sitting room with a feature fireplace, separate dining/reception hall, kitchen, utility room and two vaults — useful for storage or hobby space.
Outside there are enclosed, flagstone-paved courtyard gardens to both front and rear, the rear courtyard offering private space for alfresco dining and entertaining. Residents also benefit from well-maintained, gated communal gardens on the crescent, plus permit parking nearby. The apartment is chain free and has a very long lease (999 years from 1980, c. 954 years remaining).
Practical running costs are clear: ground rent £15 pa, building insurance share £346.20 pa and communal gardens £80 pa; service charge reported at £426.20 (below average). Council Tax Band C (£1,872.94) and excellent broadband and mobile signals suit modern working lives.
A few points to note: the apartment is lower-ground floor, so natural light will be different to upper-floor flats; buyers should view to judge aspect and light. The property is presented as nicely arranged but is in a historic building, so prospective buyers should expect period maintenance considerations. Overall this is a rare, spacious Georgian courtyard apartment in a very select location, well suited to downsizers or professionals seeking character, gardens and long-term security of tenure.
2 bedroom apartment for sale in Cavendish Crescent, BATH, Somerset, BA1 — £475,000 • 2 bed • 2 bath • 859 ft²
2 bedroom apartment for sale in Cavendish Crescent, Bath, BA1 — £600,000 • 2 bed • 2 bath • 1245 ft²
2 bedroom ground floor flat for sale in LANSDOWN - Camden Crescent, BA1 — £539,000 • 2 bed • 1 bath • 723 ft²
3 bedroom apartment for sale in Cavendish Crescent, Bath, BA1 — £550,000 • 3 bed • 2 bath • 1108 ft²
2 bedroom apartment for sale in Lansdown Crescent, Bath, BA1 — £550,000 • 2 bed • 1 bath • 1182 ft²
2 bedroom apartment for sale in Camden Crescent, Bath, Somerset, BA1 — £450,000 • 2 bed • 1 bath • 1400 ft²






































































