Spacious family home with large garden and parking for three.
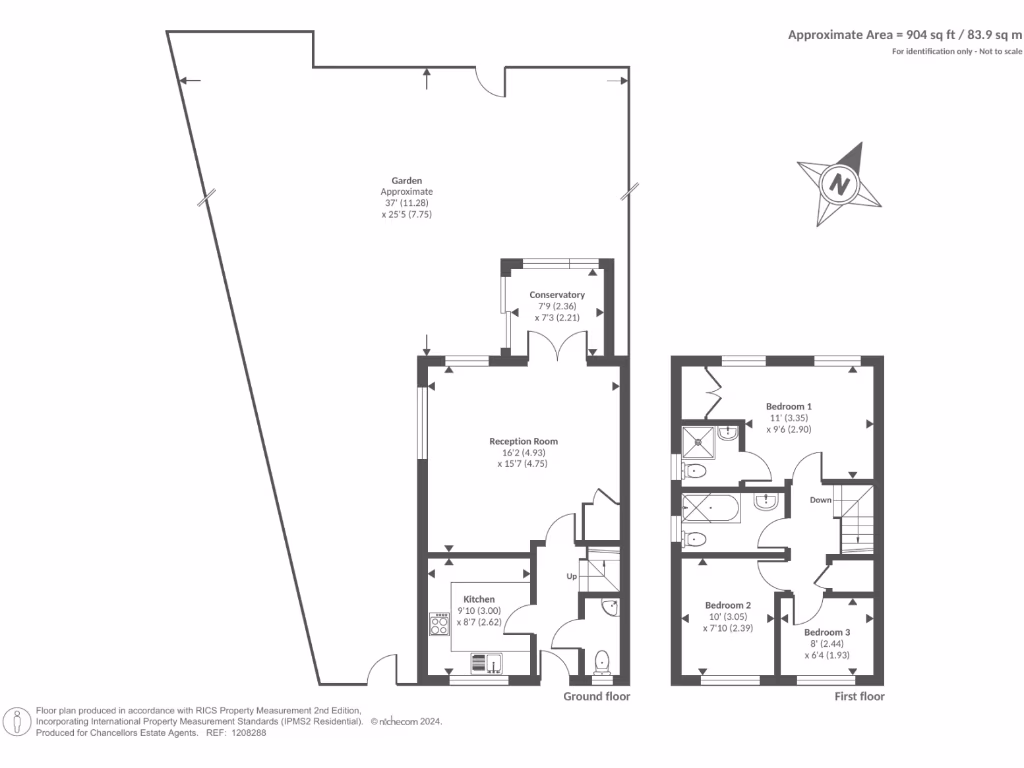
Three bedrooms with ensuite to the master
Tucked at the end of a quiet no-through road, this three-bedroom semi offers a practical family layout and a larger-than-average private rear garden that faces open fields. The ground floor WC, en-suite to the master and off-street parking for three vehicles make day-to-day living straightforward. Built around 1996–2002, the house benefits from double glazing, gas central heating and fast broadband — useful for homework or home working.
There is potential to extend subject to the normal planning consents, giving scope to increase living space or create an upstairs addition. An extra plot of land is also available to purchase separately, which could appeal to buyers wanting more outside space or longer-term development potential.
The property is being offered with no onward chain and can be delivered vacant; however, a sitting tenant currently pays £1,600 pcm and can remain if preferred — buyers should confirm their desired possession/tenancy position. Note the overall plot is described as small despite the larger-than-average rear garden; check boundaries and parking arrangements if external space is a priority.
Local amenities and schools are close by, and Bicester Village station is about 2.2 miles (six minutes) away, making this a convenient choice for commuters and growing families. Crime levels are very low and the area is affluent, which supports long-term desirability.
3 bedroom semi-detached house for sale in Ambrosden, Oxfordshire, OX25 — £300,000 • 3 bed • 1 bath • 973 ft²
3 bedroom semi-detached house for sale in Market End Way, Bicester, OX26 — £375,000 • 3 bed • 1 bath • 885 ft²
3 bedroom semi-detached house for sale in Wensum Crescent, BICESTER, Oxfordshire, OX26 — £300,000 • 3 bed • 1 bath • 866 ft²
3 bedroom end of terrace house for sale in The Crossway, BICESTER, Oxfordshire, OX27 — £375,000 • 3 bed • 2 bath • 661 ft²
3 bedroom semi-detached house for sale in Maple Road, Bicester, OX26 — £475,000 • 3 bed • 2 bath • 1252 ft²
3 bedroom semi-detached house for sale in Holm Way, BICESTER, Oxfordshire, OX26 — £395,000 • 3 bed • 1 bath • 962 ft²






































































































