Quiet cul-de-sac home with garden and scope to extend.
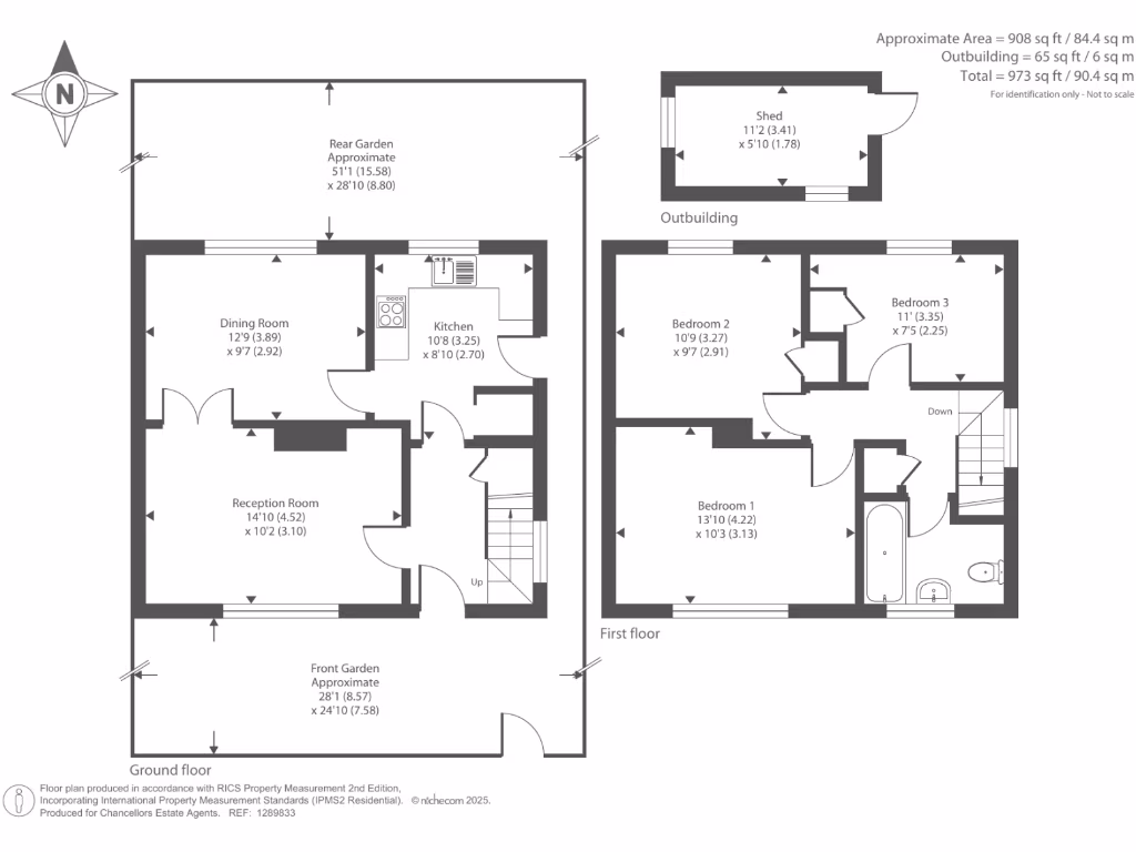
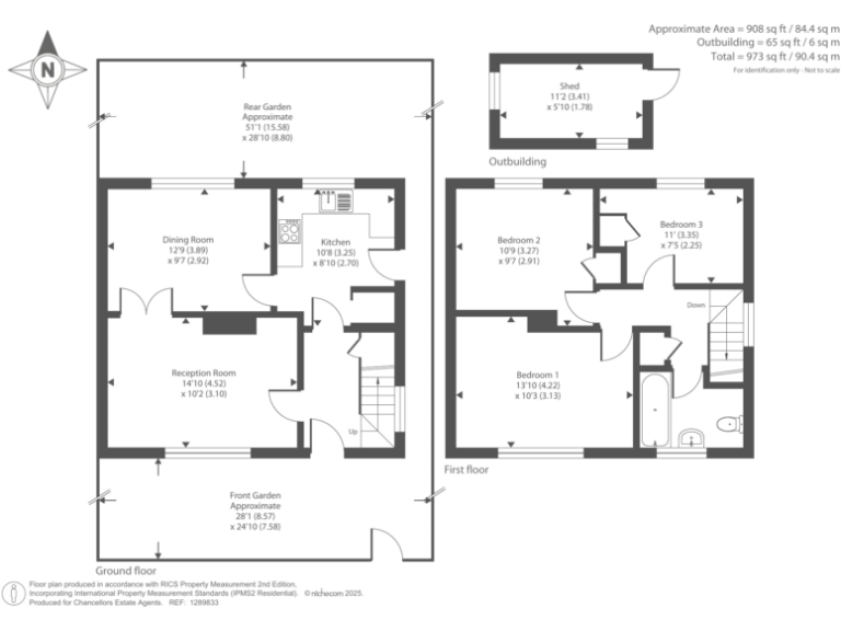
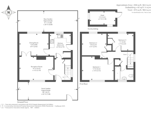
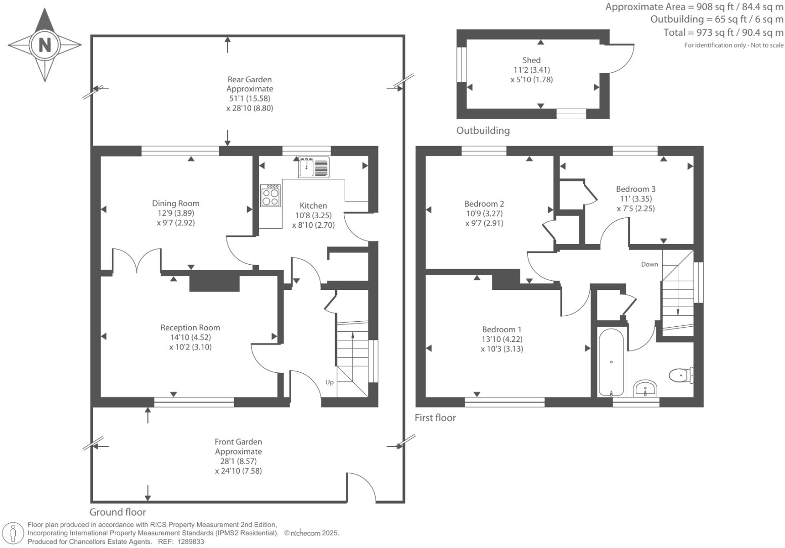
Three bedrooms with over 900 sqft of internal space
This three-bedroom semi-detached home sits on a generous plot in a quiet cul-de-sac on Ambrosden’s edge, with more than 900 sqft of living space and a private enclosed rear garden. The property overlooks green open space and is offered vacant with no onward chain, making it straightforward for a buyer who wants a prompt move or renovation project.
Practical benefits include on-street parking (with potential to create a dropped-kerb driveway), an external storage shed, and easy access to local amenities — shop, pub and schools are all within half a mile, and Bicester Village railway station is about 2.4 miles away. The house dates from the 1930–49 period and retains a traditional layout that offers scope to extend or reconfigure to suit modern family life.
Important points to note: the installed heating is electric storage heaters, so buyers should budget for heating upgrade if preferred, and the property will benefit from refurbishment to update kitchens, bathrooms and general finishes. Overall this is a well-located, characterful home for a family or buyer seeking a renovation opportunity in a very low-crime, affluent area.
3 bedroom semi-detached house for sale in Bluebell Road, Ambrosden, OX25 — £390,000 • 3 bed • 2 bath • 942 ft²
3 bedroom terraced house for sale in Willow Road, Ambrosden, Bicester, OX25 — £335,000 • 3 bed • 1 bath • 1259 ft²
3 bedroom semi-detached house for sale in Wensum Crescent, BICESTER, Oxfordshire, OX26 — £320,000 • 3 bed • 1 bath • 866 ft²
3 bedroom terraced house for sale in Birch Road, Ambrosden, Bicester, OX25 — £250,000 • 3 bed • 1 bath • 701 ft²
3 bedroom detached house for sale in Violet Close, Ambrosden, OX25 — £450,000 • 3 bed • 2 bath • 1008 ft²
4 bedroom end of terrace house for sale in Sycamore Road, Ambrosden, Bicester, OX25 2RN, OX25 — £190,000 • 4 bed • 2 bath • 1138 ft²


















































































