Affordable new-build three-bed with garden and parking near Hereford.
35% shared ownership price £123,375 (full value £352,500)
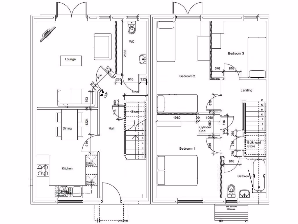
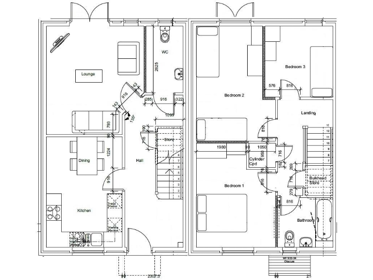
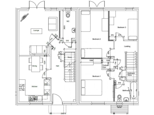
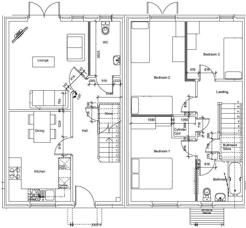
A modern three-bedroom end-terrace offered on a 35% shared ownership basis, ideal for first-time buyers seeking an affordable entry into Herefordshire. The new-build home includes gas central heating, solar panels to reduce bills, a fitted kitchen with integrated hob and oven, and two off-road parking spaces. Outside there's a turfed rear garden with screen fencing; the house sits on a small, low-maintenance plot.
Important financial and tenure details are clear: the 35% share is priced at £123,375 (full market value £352,500). Rent and service charge combine to £580.31 per month, and the annual service charge is £6,963.72 (above average). The lease has 123 years remaining and staircasing to increase ownership is capped at a maximum of 80%.
The location supports rural living with strong links to Hereford (about 4.5 miles). Local amenities include a Post Office, small shops and Hereford Garden Centre nearby, with good primary schools in the village and strong secondary school options in the area. Fast broadband and excellent mobile signal suit remote working, while nearby Woodland Trust trails and parish paths provide outdoor recreation.
This home suits buyers prioritising affordability, low-maintenance modern living and access to countryside amenities. It is smaller in total floor area (approximately 557 sq ft) so check room sizes against your needs; purchasers should also budget for ongoing rent and a comparatively high service charge.
3 bedroom terraced house for sale in Oakfields, Off A480, Credenhill, Hereford, HR4 — £122,500 • 3 bed • 1 bath • 996 ft²
3 bedroom end of terrace house for sale in Oakfields, Off A480, Credenhill, Hereford, HR4 — £123,375 • 3 bed • 1 bath • 669 ft²
3 bedroom semi-detached house for sale in Oakfields, Off A480, Credenhill, Hereford, HR4 — £124,250 • 3 bed • 1 bath • 1001 ft²
2 bedroom semi-detached house for sale in Oakfields, Off A480, Credenhill, Hereford, HR4 — £116,000 • 2 bed • 1 bath • 860 ft²
3 bedroom end of terrace house for sale in Dunnock Close, Holmer, Hereford - Shared Ownership, HR4 — £112,000 • 3 bed • 1 bath • 904 ft²
3 bedroom semi-detached house for sale in Plot 36 Giorgia, Cherry Orchard, Marden, Herefordshire, HR1 — £120,750 • 3 bed • 1 bath • 897 ft²






























