Ready-to-move, well-located apartment ideal for first-time buyers or investors.
Chain free freehold apartment
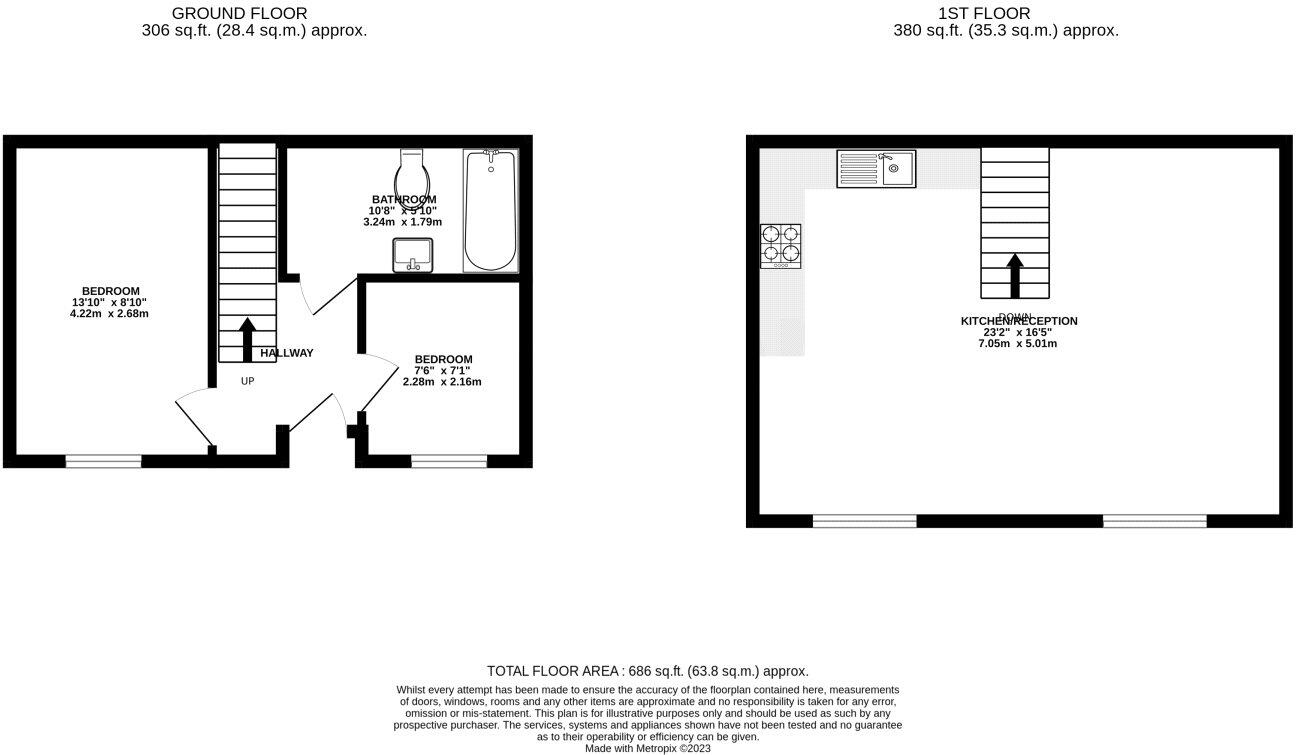
Split-level layout creates separation between floors
Two double bedrooms; 686 sq ft total space
Neutrally decorated — ready to move in
EPC C; double glazing fitted before 2002
Single bathroom only; may limit larger households
Above-average local crime levels — consider security measures
Excellent mobile signal and fast broadband; good local schools
This split-level two-bedroom freehold apartment offers 686 sq ft of well-laid-out living across two levels, making efficient use of space for modern living. It is neutrally decorated and chain free, so it’s ready for a straightforward move or let.
The property benefits from double glazing, mains gas central heating with a boiler and radiators, and an EPC rating of C. Local amenities, good primary and secondary schools, fast broadband and excellent mobile signal make this a convenient choice for first-time buyers or city commuters seeking a manageable home close to services and transport links.
Buyers should note a single bathroom and the split-level layout may affect accessibility for some. Crime levels in the immediate area are above average, and glazing was installed before 2002 which may require future updating. Overall this is a practical, well-proportioned home with good onward potential in a sought-after SE26 location.
2 bedroom apartment for sale in Kirkdale, Denham Court Kirkdale, SE26 — £275,000 • 2 bed • 1 bath • 512 ft²
2 bedroom apartment for sale in Fairlawn Park, London, SE26 — £325,000 • 2 bed • 1 bath • 705 ft²
2 bedroom apartment for sale in Willow Way, London, SE26 — £350,000 • 2 bed • 1 bath • 680 ft²
2 bedroom flat for sale in Kent House Road, Sydenham, London, SE26 — £315,000 • 2 bed • 1 bath • 667 ft²
3 bedroom apartment for sale in Peters Path, London, SE26 — £365,000 • 3 bed • 1 bath • 900 ft²
2 bedroom flat for sale in Bromley Road, Catford, London, SE6 — £300,000 • 2 bed • 1 bath • 818 ft²


































