Centrally located retirement flat with communal facilities and visitor suite.
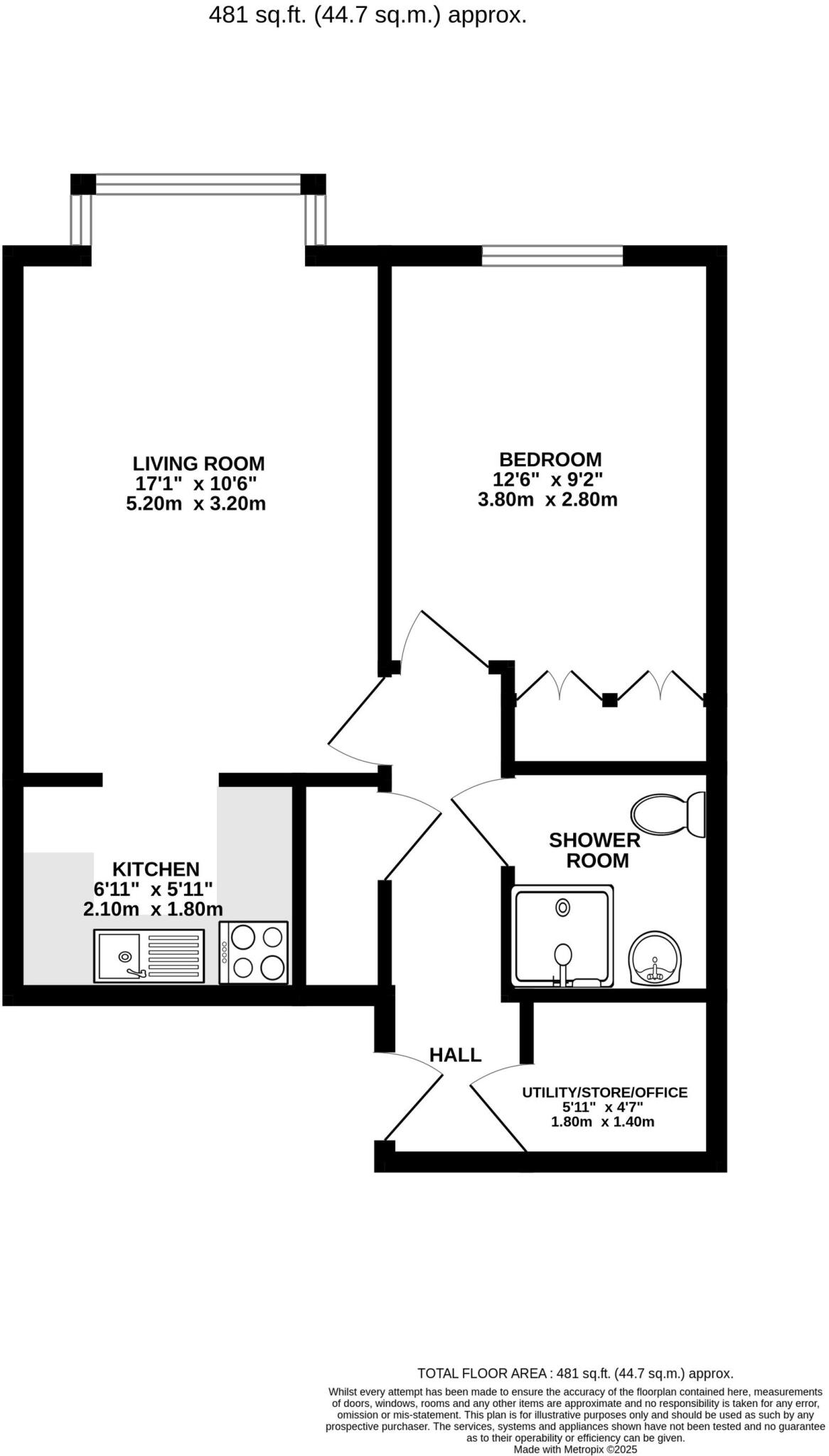
Larger-style one-bed ground-floor flat with extra storage
Set in the heart of Knutsford, Flat 4 at Ash Court is a larger-style one-bedroom retirement flat on the ground floor, offered chain free. The apartment has been newly renovated and benefits from a refitted kitchen and bathroom, double glazing, built-in bedroom wardrobes and additional storage — all presented to a good standard. Its ground-floor position sits close to the main entrance, convenient for mobility and visitor access.
Residents enjoy a welcoming communal scheme with a lounge, library, laundry room and a guest suite for visitors, plus on-site off-street parking. The location is a major asset: moments from Booths supermarket, cafés, shops and transport links, making everyday errands straightforward and social life accessible.
Important practical points: the flat is leasehold with an annual service charge of £4,014.43 and electric storage heaters as the main heating source. The communal garden is small to average and private outside space is limited. Local crime levels are reported as high, which buyers should consider alongside the building’s secure communal environment.
Overall, this well-presented retirement property suits someone seeking low-maintenance, centrally located living with communal support and visitor accommodation. It will particularly appeal to downsizers who prioritise proximity to town amenities, ease of access and move-in-ready condition, while being realistic about service costs and heating type.
2 bedroom retirement property for sale in King Edward Road, Ash Court King Edward Road, WA16 — £275,000 • 2 bed • 1 bath • 574 ft²
2 bedroom retirement property for sale in Ash Court, King Edward Road, Knutsford, WA16 — £215,000 • 2 bed • 1 bath • 567 ft²
1 bedroom retirement property for sale in King Edward Road, Knutsford, WA16 — £157,000 • 1 bed • 1 bath • 453 ft²
2 bedroom retirement property for sale in Ash Court, King Edward Road, Knutsford, WA16 — £210,000 • 2 bed • 1 bath • 524 ft²
2 bedroom retirement property for sale in King Edward Road, Knutsford, WA16 — £215,000 • 2 bed • 1 bath • 558 ft²
1 bedroom retirement property for sale in King Edward Road, Ash Court King Edward Road, WA16 — £149,950 • 1 bed • 1 bath • 421 ft²


















































