Quiet corner position with only one adjoining neighbour
Sunny rear aspect with bay window and views over playing fields
Refitted kitchen with integrated appliances and modern shower room
Communal lift, landscaped grounds and nearby shops/bus station
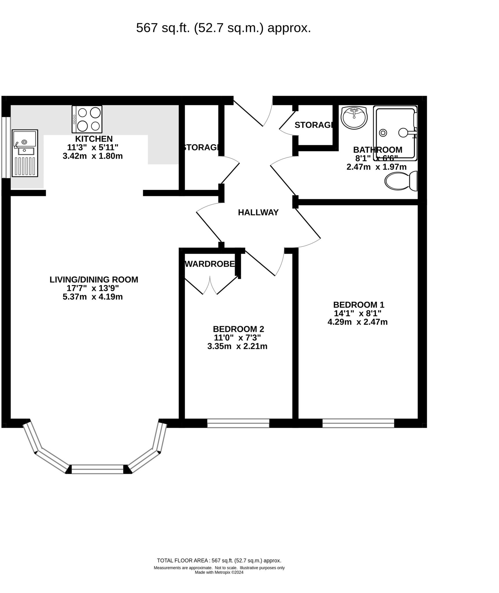
Compact footprint (≈567 sq ft) — limited internal space
Lease ~60 years remaining — some lenders may refuse to lend
Service charge £4,272pa (above average); ground rent £228pa
Electric room heaters (no central heating) — potential higher running costs
Set within Ash Court, this second-floor, two-bedroom retirement flat offers low‑maintenance living in a sought-after over‑60s development. A quiet corner position with only one adjoining neighbour and a sunny rear aspect overlooks Egerton Primary School and playing fields, bringing natural light into the bay-fronted living/dining room. The recently re-laid carpet, refitted kitchen with integrated appliances and a modern shower room present a neat, move‑in ready home with a communal lift and landscaped grounds.
The apartment is compact (approx. 567 sq ft) but well planned: entrance hall storage, a bay window reception, two bedrooms and a kitchen with a rare window outlook over the playing fields. Practical updates include upgraded USB sockets and side access to the building. The development’s location is convenient — a short, level walk to Booths, the bus station and Knutsford town centre amenities.
Important drawbacks to note: the lease has about 60 years remaining, which may limit mortgage options and could require early action to extend. Service charges are relatively high at £4,272 pa and there is an annual ground rent (£228). Heating is electric with room heaters rather than a central system, which may affect running costs. The overall internal area is modest, better suited to downsizers seeking convenience rather than large living spaces.
For a buyer aged 60+ seeking a well‑maintained, ready-to-occupy flat close to town facilities, this apartment offers an attractive, low‑upkeep base with communal gardens and parking. However, prospective purchasers should check mortgage availability given the lease length and budget for ongoing service charges and electric heating costs.







































































