Cleared infill plot with planning consent—auction sale, ideal for a small developer or investor.
Full planning permission for one 3/4-bedroom detached house (ref: 24/02708/FUL)
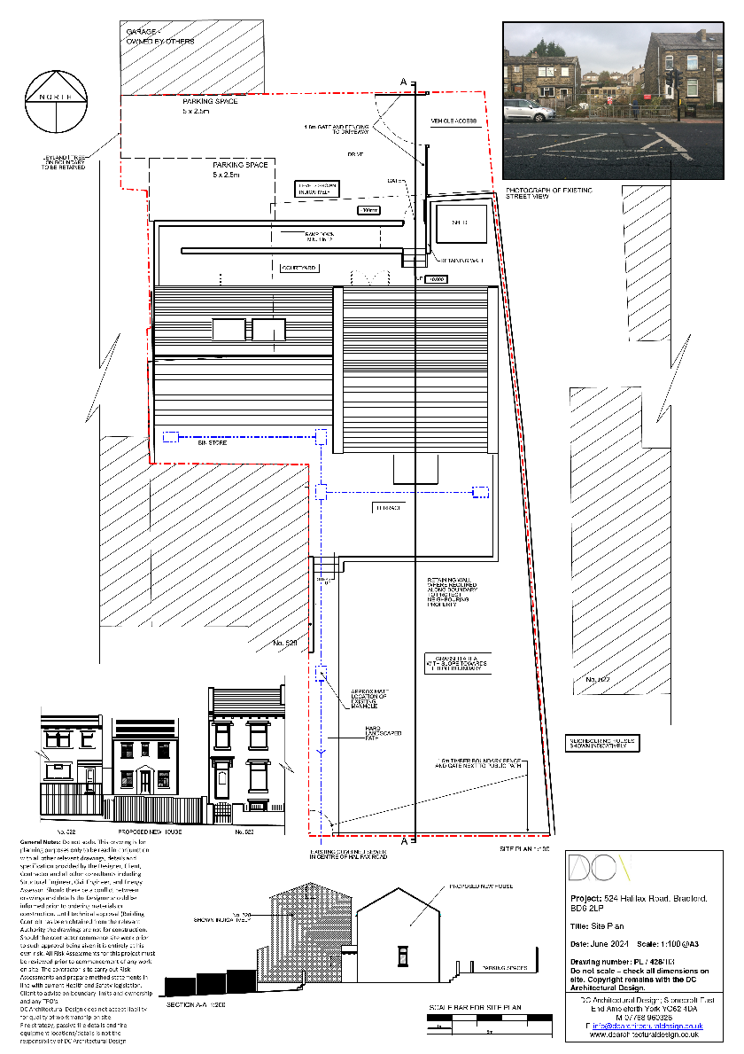
A cleared infill plot on Halifax Road with full planning permission (ref: 24/02708/FUL) for a 3/4-bedroom detached house — ready for a developer or investor to take through to build. The site sits immediately between two traditional stone terraces and has clearly defined boundaries and existing foundations, reducing initial investigative unknowns compared with a greenfield site.
Practical requirements are straightforward: the plot will need clearance, leveling and new services connections before construction, and a site survey is advised to confirm foundation and drainage conditions. The location is inner suburban with fast broadband and excellent mobile signal, useful for resale or rental marketing once completed.
Material considerations are important: the area is classified as deprived with a high local crime rate, and nearby secondary provision includes a school rated Inadequate — factors that could affect resale values and rental yields. The site is sold freehold by auction, starting price £35,000, and will be subject to reservation fees and the auction method’s timescales.
This opportunity suits a builder, small developer or investor comfortable operating in tighter urban plots and factoring in works to connect services and manage local market conditions. Check the Bradford Council planning portal for full permission details and commission a survey before bidding.
Land for sale in Halifax Road, Bradford, BD6 — £50,000 • 1 bed • 1 bath
Land for sale in Harrogate Road, Eccleshill,, BD2 — £69,950 • 1 bed • 1 bath
Property for sale in Post Office Road, Bradford, West Yorkshire, BD2 — £170,000 • 1 bed • 1 bath
Land for sale in Dodge Holme Drive, Halifax, West Yorkshire, HX2 8PE, HX2 — £65,000 • 1 bed • 1 bath • 5662 ft²
Plot for sale in Leeds Road, Eccleshill, Bradford, BD2 — £75,000 • 1 bed • 1 bath
Land for sale in Field Lane, Brighouse, West Yorkshire, HD6 — £270,000 • 1 bed • 1 bath














