Quiet single-storey home with garage, garden and easy access to town amenities.
Chain free two-bedroom bungalow with potential third bedroom dining room
Secluded rear garden, paved terrace, mature shrubs and lawn
Driveway plus single garage with power and light
Sitting room with fitted woodburner and double glazing throughout
Gas central heating (Worcester boiler) and EPC Band C
Constructed mid‑20th century; some updating likely desired
Average mobile signal and broadband speeds — check provider availability
No flood risk; located in very low crime, affluent town fringe area
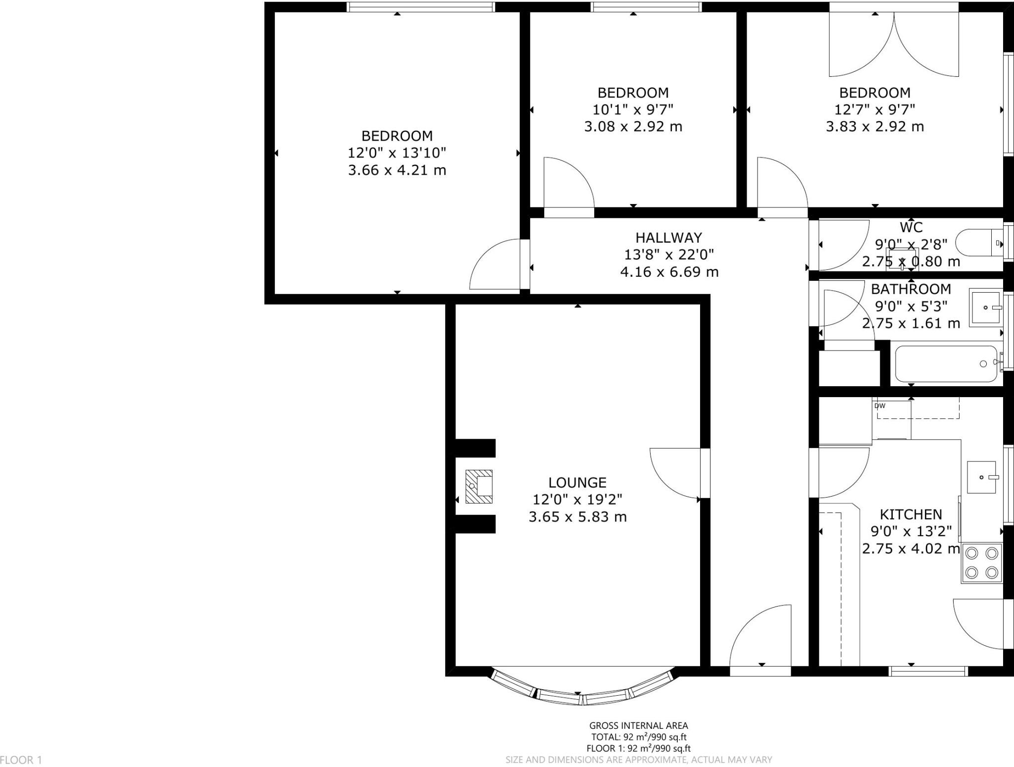
This single-storey semi-detached bungalow sits quietly in a cul‑de‑sac near Heathfield town centre, offering an easy, low‑maintenance home for downsizers or retirees. The layout is practical: an L-shaped hall leads to a sitting room with a fitted woodburner, a double-aspect kitchen, two rear-facing bedrooms, a bathroom plus a separate WC. A dining room currently used as such could convert to an occasional third bedroom if required.
Outside, the property benefits from a secluded rear garden with mature planting and a paved terrace, plus a driveway and single garage with power and light. Double glazing and a gas-fired Worcester boiler provide warmth and efficiency; the EPC is band C and council tax is affordable (Band C), helping keep ongoing costs reasonable.
The bungalow is offered chain free and sits within easy walking distance of Heathfield’s shops, services and bus links. Local schools and nearby towns including Tunbridge Wells, Hastings and Eastbourne are all within commuting distance, making this a convenient base for local amenities and visiting family.
A frank point: the house was constructed in the mid-20th century and retains some period fittings and finishes that may suit refreshing to modern tastes. Mobile signal and broadband speeds are average; those requiring high-speed connections should check providers. Overall this is a practical, comfortable bungalow with good outdoor space and clear potential to personalise.
2 bedroom bungalow for sale in Tower Street, Heathfield, East Sussex, TN21 — £400,000 • 2 bed • 1 bath • 987 ft²
2 bedroom detached bungalow for sale in Swaines Way, Heathfield, East Sussex, TN21 0AN, TN21 — £340,000 • 2 bed • 1 bath • 1078 ft²
4 bedroom bungalow for sale in Marshlands Lane, Heathfield, TN21 — £525,000 • 4 bed • 2 bath • 2050 ft²
2 bedroom detached bungalow for sale in Cuckmere Rise, Heathfield, TN21 — £425,000 • 2 bed • 1 bath • 870 ft²
4 bedroom bungalow for sale in Wealdview Road, Heathfield, East Sussex, TN21 — £500,000 • 4 bed • 1 bath • 1353 ft²
3 bedroom chalet for sale in Longview, Heathfield, TN21 — £330,000 • 3 bed • 1 bath • 1143 ft²






































































