Spacious single-level home with large garden and solar savings.
Chain-free detached bungalow in quiet cul-de-sac
South-facing solar panels exporting energy to the grid
Generous, well-stocked garden with wooded area and stream
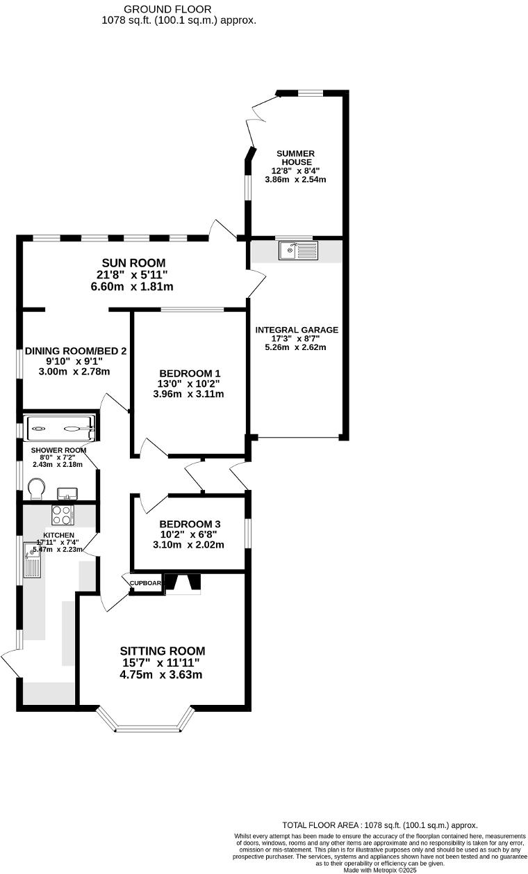
Wide sun room across rear overlooking patio and garden
Integral garage, off-street parking for multiple cars
Dated interior and finishes — renovation/modernisation likely
Single shower room only; two bedrooms limit household flexibility
Sloping garden with steps down to lower wooded section
This two-bedroom detached bungalow in a quiet Heathfield cul-de-sac offers single-level living with a large, well-stocked garden and generous internal space. The layout includes a wide sun room spanning the rear, a generous lounge with bay window, an integral garage, and useful undercroft storage — features that suit downsizers looking for comfort and practical storage.
Outside space is a standout: a paved entertaining patio leads down to lawned and planted areas, a greenhouse, shed and a wooded section that borders a small stream. The south-facing roof hosts solar panels that export power back to the grid, helping running costs. Off-street parking for multiple vehicles and a no-through road location add convenience and low traffic.
The property is offered chain-free and sits within walking distance of Heathfield High Street via the Cuckoo Trail. Mainline stations (Stonegate and Uckfield) are about a 15-minute drive, and local amenities, shops and good schools are nearby. Gas central heating and mains drainage are in place, and the bungalow occupies a generous plot in a very affluent, low-crime area.
The bungalow is mid-20th century and shows some dated elements internally — décor and finishes will suit those happy to modernise. The single shower room and two bedrooms limit flexibility for larger households, and the sloped garden requires negotiating steps to reach the lower, natural wooded area. Overall this home offers solid downsizing potential with scope for cosmetic updating and garden-focused enjoyment.
2 bedroom bungalow for sale in Tower Street, Heathfield, East Sussex, TN21 — £400,000 • 2 bed • 1 bath • 987 ft²
3 bedroom detached bungalow for sale in Firwood Rise, Heathfield, TN21 — £575,000 • 3 bed • 1 bath • 1180 ft²
2 bedroom detached bungalow for sale in Cuckmere Rise, Heathfield, TN21 — £425,000 • 2 bed • 1 bath • 870 ft²
4 bedroom bungalow for sale in Wealdview Road, Heathfield, East Sussex, TN21 — £500,000 • 4 bed • 1 bath • 1353 ft²
3 bedroom chalet for sale in Longview, Heathfield, TN21 — £330,000 • 3 bed • 1 bath • 1143 ft²
2 bedroom bungalow for sale in Churchill Road, Heathfield, East Sussex, TN21 — £250,000 • 2 bed • 1 bath • 1768 ft²






























































