EH52 6RD - 4 bedroom detached house for sale in Shale Road, Winchburgh…

View on Property Piper

4 bedroom detached house for sale in Shale Road, Winchburgh, West Lothian, EH52 6RD, EH52

Summary - Shale Road, Winchburgh, West Lothian, EH52 6RD EH52 6RD

4 bed 1 bath Detached

Four double bedrooms with wardrobe space
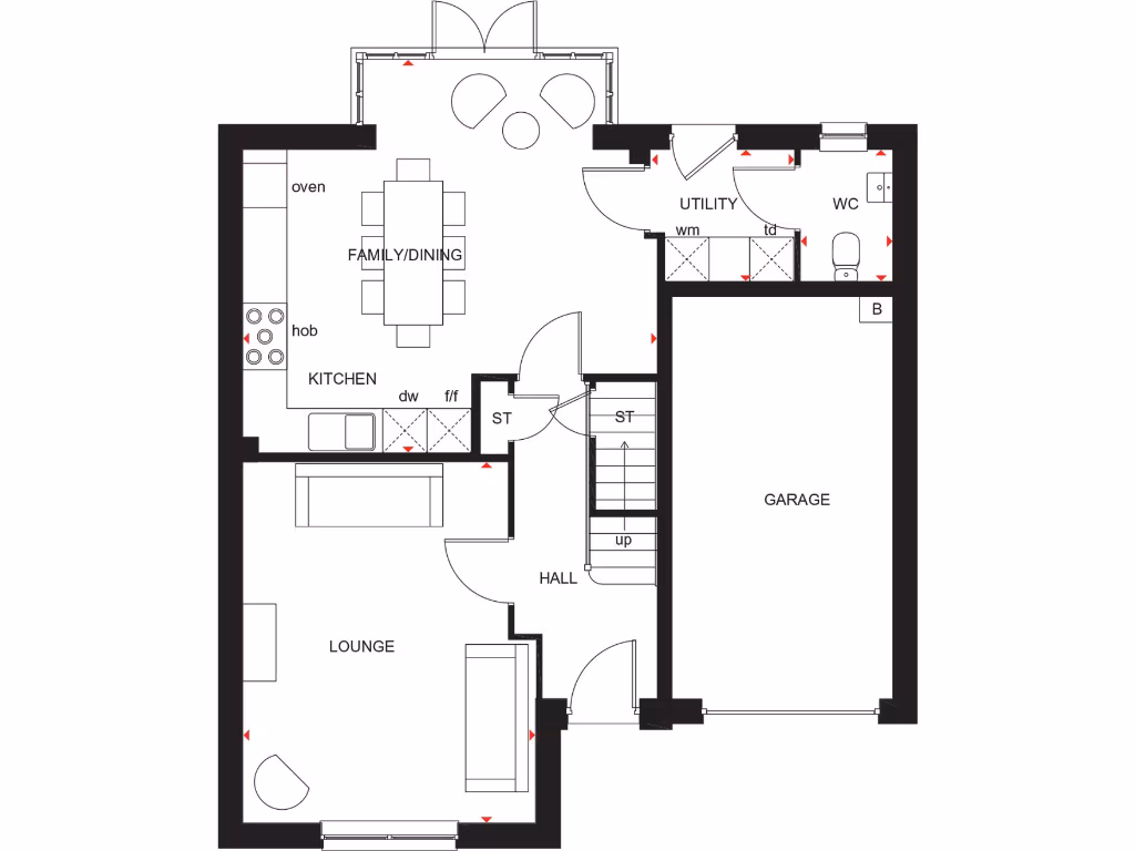
This newly built four-bedroom detached house on Shale Road is designed for modern family life. The open-plan kitchen/family/dining space opens through French doors to the garden, creating a bright hub for daily living and entertaining. A generous front lounge offers a separate sitting area, while an integral garage and paved driveway provide practical parking and storage.

Upstairs are four double bedrooms with wardrobe space; both Bedrooms 1 and 2 have en suite shower rooms, plus a family bathroom for household convenience. The specification includes double glazing and contemporary finishes; a flooring package (worth over £9,000) is included and part-exchange or a £21,749 deposit boost is available. Completion is scheduled for spring 2026.

Practical points to note: total internal area is approximately 1,200 sq ft, broadband speeds are average, mobile signal is excellent, and the site has no flood risk. The wider location benefits from new road links to the M9 for quicker access to Edinburgh and Glasgow and local amenities in Winchburgh.

Important considerations: the property sits in a locality classified as "very deprived" and tenure is not specified in the information provided. Buyers should request full details on tenure, running costs, warranty cover and a specification sheet, and arrange an on-site inspection to confirm finish and exact layout before committing.

Property Details

Brochure Descriptions

Image Descriptions

Floorplan Description

Rooms

Textual Property Features

Detected Visual Features

Nearest Bars And Restaurants

,,,,}

Nearest General Shops

,,}

Nearest Grocery shops

,,}

Nearest Supermarkets

,,}

Nearest Religious buildings

,,}

Nearest Medical buildings

,,,}

Nearest Airports

}

Nearest Leisure Facilities

,,,,}

Nearest Tourist attractions

,,}

Nearest Train stations

,,,,}

Nearest Bus stations and stops

,,,,}

Nearest Hotels

,,}

Tags

Local Market Stats

Similar Properties

Meta

High Res Images

Compatible Images

Low res Images

Thumbnails

Raw Images

High Res Floorplan Images

Compatible Floorplan Images

Low res Floorplan Images

FloorplanImages Thumbnail

Raw Floorplan Images