**Standout Features:**
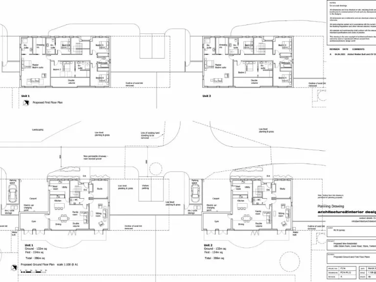
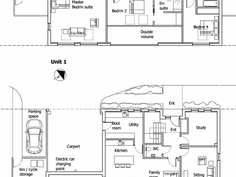
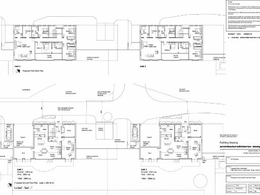
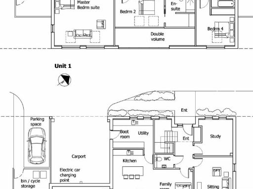
- Detailed planning permission for conversion of 2 former poultry buildings into 2 detached 5-bedroom houses.
- Tucked-away, peaceful rural location on the edge of Stone village.
- Connected 3-phase electricity and water supply on-site.
- Off-road parking with carports and spacious gardens.
- Potential for additional land purchase.
**Summary:**
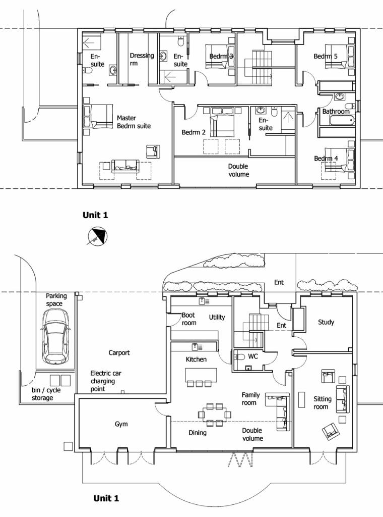
Unlock your dream project with the exceptional opportunity to develop two luxurious 5-bedroom detached houses in the serene setting of Little Odiam Poultry Farm, Stone. With detailed planning permission granted, this expansive plot presents ample space for two stylish residences designed for modern living, including airy reception halls, spacious kitchen/dining/family areas, and master suites complete with ensuite and dressing rooms.
Nestled in a quiet lane backed by lush countryside, this prime location boasts easy access to local amenities, schools, and transport links, making it an ideal investment for families or those seeking a peaceful retreat. Each unit will benefit from private gardens and ample off-street parking, ensuring comfort and convenience.
While the conversion will require careful renovations to bring the existing structures up to modern standards, the potential for customization allows you to create prestigious homes that harmonize with their tranquil surroundings. Explore this unique opportunity today—properties with such potential and positioning are rare and won’t last long!
Land for sale in Appledore Road, Stone In Oxney, Tenterden, Kent TN30 7JL , TN30 — £475,000 • 4 bed • 2 bath • 3202 ft²
Land for sale in Appledore Road, Stone in Oxney, Tenterden, Kent TN30 7JN, TN30 — £425,000 • 4 bed • 2 bath • 3202 ft²
5 bedroom detached house for sale in Knowle Road, Brenchley, TN12 — £750,000 • 5 bed • 3 bath • 3500 ft²
Farm for sale in St. Michaels, Tenterden, TN30 — £650,000 • 1 bed • 1 bath
3 bedroom barn conversion for sale in Hawkbrand House, Knowle Road, TN12 — £325,000 • 3 bed • 2 bath • 1600 ft²
5 bedroom detached house for sale in Stone Street, Lympne, Hythe, Kent, CT21 — £899,995 • 5 bed • 2 bath






















