Large rear garden and village amenities, ideal affordable first home.
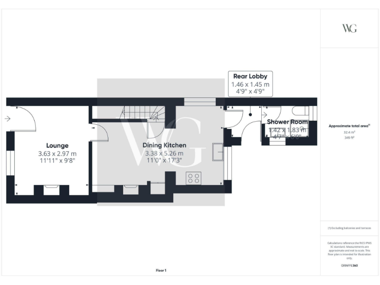
- Two double bedrooms, compact 560 sq ft footprint
- Generous, unusually large rear garden for the terrace
- Open-plan lounge and kitchen/dining on ground floor
- Gas central heating and UPVC double glazing installed
- Single shower room only, no separate bath
- On-street parking; no garage or off-street parking
- EPC rating D; would benefit from energy upgrades
- Freehold, very low local crime, close to train station
Set on the edge of Hutton Cranswick, this two-bedroom end terrace offers compact, characterful living with an unusually generous rear garden. The ground floor is open-plan between lounge and kitchen/dining, creating a light, social space for everyday living. The house benefits from gas central heating and UPVC double glazing for practical, cost-effective warmth.
Internally the footprint is modest at around 560 sq ft, with two double bedrooms and a single shower room—suited to a first home, young couple or downsizer seeking village life rather than large-family accommodation. The property is freehold, has very low local crime levels and quick access to local shops, a train station and a good village primary school.
The key value driver is the large rear garden: rare for this terrace, it offers scope for landscaping, extensions (subject to consent) or creating a private outdoor living area. Practical points to note: the EPC is rated D and the accommodation will benefit from some updating to improve energy efficiency and finish. Parking is on-street only.
This cottage is for buyers who prioritise outdoor space and village amenities over internal square footage. It represents an affordable route into a desirable, well-served East Yorkshire village, with clear potential to add value through modest improvement work.
 2 bedroom end of terrace house for sale in Cuckoo Cottage, 9 Main Street, Hutton Cranswick, Driffield, YO25 9QR, YO25 — £165,000 • 2 bed • 1 bath • 560 ft²
 2 bedroom end of terrace house for sale in Cuckoo Cottage, 9 Main Street, Hutton Cranswick, Driffield, YO25 9QR, YO25 — £165,000 • 2 bed • 1 bath • 560 ft² 3 bedroom detached house for sale in 8 Station Road, Cranswick, Driffield, YO25 9QZ, YO25 — £350,000 • 3 bed • 2 bath • 1067 ft²
 3 bedroom detached house for sale in 8 Station Road, Cranswick, Driffield, YO25 9QZ, YO25 — £350,000 • 3 bed • 2 bath • 1067 ft² 2 bedroom semi-detached bungalow for sale in 43 Londesborough Road,  Hutton Cranswick, Driffield, YO25 9PL, YO25 — £160,000 • 2 bed • 1 bath • 617 ft²
 2 bedroom semi-detached bungalow for sale in 43 Londesborough Road,  Hutton Cranswick, Driffield, YO25 9PL, YO25 — £160,000 • 2 bed • 1 bath • 617 ft² 3 bedroom chalet for sale in Main Street, Hutton Cranswick, YO25 9QR, YO25 — £395,000 • 3 bed • 2 bath • 336 ft²
 3 bedroom chalet for sale in Main Street, Hutton Cranswick, YO25 9QR, YO25 — £395,000 • 3 bed • 2 bath • 336 ft² 1 bedroom terraced house for sale in Main Street, Hutton Cranswick YO25 9QY, YO25 — £127,500 • 1 bed • 1 bath • 560 ft²
 1 bedroom terraced house for sale in Main Street, Hutton Cranswick YO25 9QY, YO25 — £127,500 • 1 bed • 1 bath • 560 ft² 5 bedroom detached house for sale in Holly Croft, Station Road, Cranswick, Driffield, YO25 9QA, YO25 — £525,000 • 5 bed • 3 bath • 2288 ft²
 5 bedroom detached house for sale in Holly Croft, Station Road, Cranswick, Driffield, YO25 9QA, YO25 — £525,000 • 5 bed • 3 bath • 2288 ft²










































































































