Immaculate two-bed garden flat with long lease, big garden and fast transport links.
Share of freehold with a very long lease (988 years)
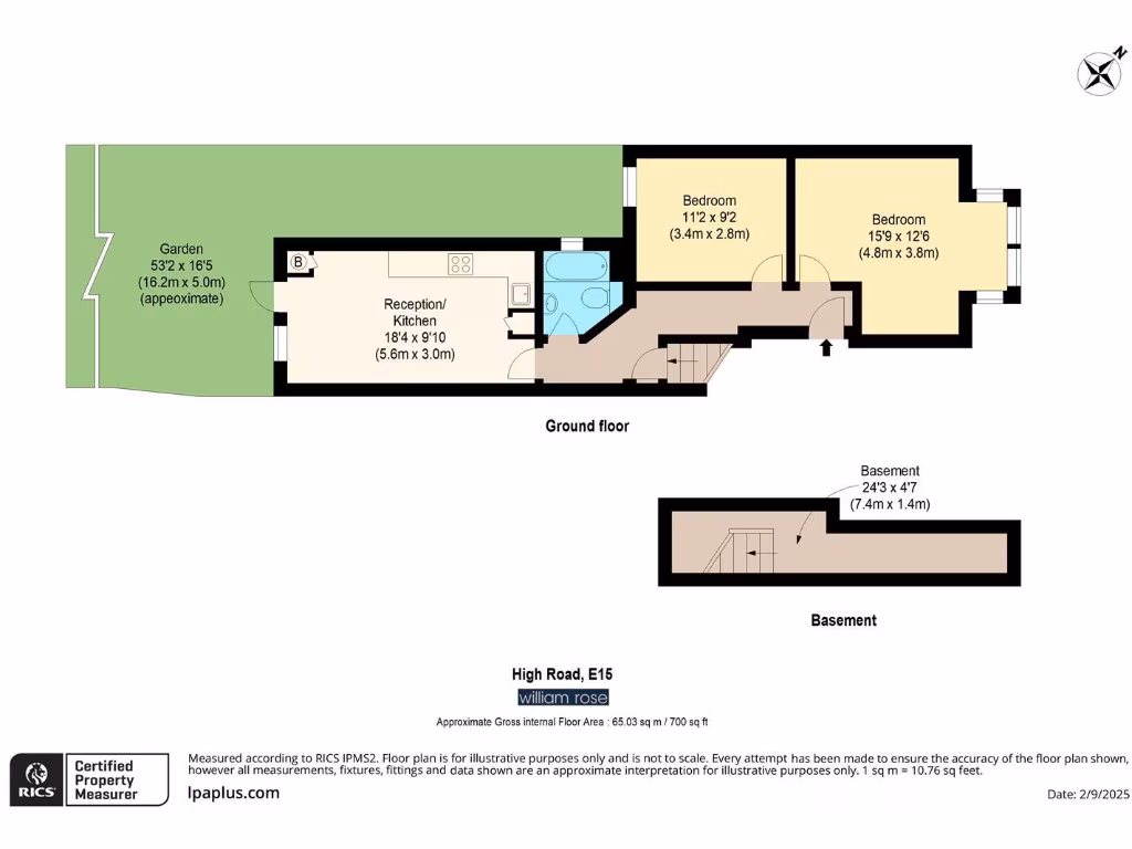
Expansive private rear garden — above-average outdoor space
Immaculate, newly renovated interior and modern bathroom
Useful basement storage area included
Moments from Leyton Central Line and local cafés
Average internal living area (~700 sq ft) for a two-bed flat
Potential to extend, subject to planning permission (stpp)
Local area has high crime and higher deprivation levels
This bright two-bedroom garden flat on High Road Leyton offers a ready-to-move-in home with genuine outdoor space. The apartment arrives in immaculate, newly renovated condition with a modern bathroom, double glazing and useful basement storage. The extensive private rear garden is a standout feature for summer entertaining or expanding living space (subject to planning).
Well suited to first-time buyers or buy-to-let investors, the property benefits from a long lease (share of freehold) and fast transport links — Leyton Central Line is moments away, with Stratford, Westfield and the Olympic Park within walking distance. The internal footprint is average for a two-bedroom ground-floor flat (approximately 700 sq ft) but the large garden noticeably increases overall amenity and lifestyle potential.
Buyers should note material local considerations: the neighbourhood has higher-than-average crime levels and is in a deprived area, which may affect resale or rental yield expectations. The building is a period mid-terrace with assumed solid brick walls and no added insulation, so additional insulation works could be needed to improve energy efficiency. There is potential to extend subject to planning permission (stpp). Council tax is described as cheap and broadband and mobile signal are strong.
2 bedroom apartment for sale in Calderon Road, Leyton, E11 — £525,000 • 2 bed • 1 bath • 634 ft²
3 bedroom flat for sale in High Road Leytonstone, Leytonstone, London, E11 — £475,000 • 3 bed • 1 bath • 1075 ft²
2 bedroom ground floor flat for sale in Francis Road, Leyton, E10 — £425,000 • 2 bed • 1 bath • 798 ft²
2 bedroom flat for sale in Alexandra Road, Leyton, E10 — £450,000 • 2 bed • 1 bath • 604 ft²
2 bedroom flat for sale in Nutfield Road, London, E15 — £390,000 • 2 bed • 1 bath • 657 ft²
2 bedroom flat for sale in Francis Road, Leyton, E10 — £500,000 • 2 bed • 1 bath • 642 ft²


























































