PR1 4UA - 3 bedroom end of terrace house for sale in Iddesleigh Road,…

View on Property Piper

3 bedroom end of terrace house for sale in Iddesleigh Road, Preston, PR1

Summary - 12 IDDESLEIGH ROAD PRESTON PR1 4UA

3 bed 1 bath End of Terrace

Affordable chain-free three-bed — ideal starter home or investor project.
Chain-free freehold, affordable asking price
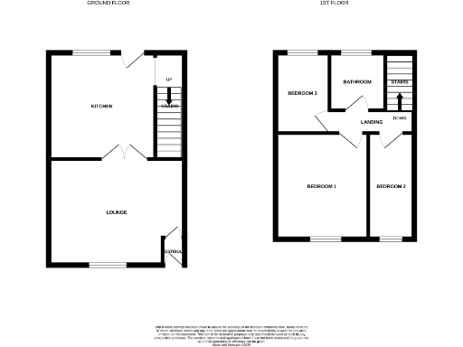
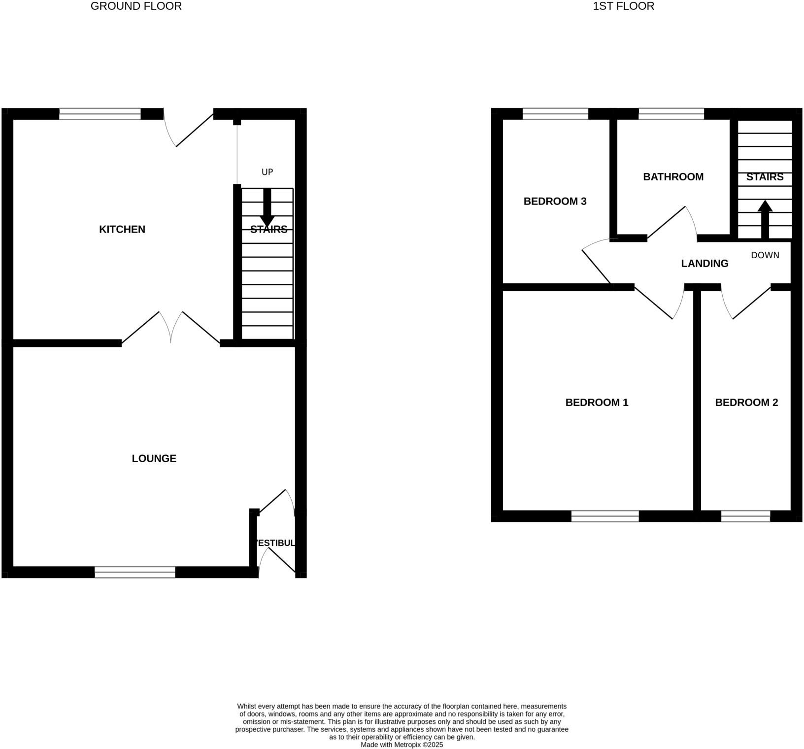
A three-bedroom end terrace in Preston offering an affordable entry to the property market or a buy-to-let opportunity. The house occupies a small corner plot with a rear yard and on-street parking, and is arranged over two floors with a lounge, kitchen, three bedrooms and a family bathroom.

Built circa 1900–1929, the property retains Victorian brick character but is overall small and of traditional solid-wall construction with no assumed cavity insulation. The boiler and radiators run on mains gas; double glazing is present though installation date is unknown. EPC rating D and council tax band A keep running costs relatively low.

The location is convenient for local shops, bus routes and Preston city centre; several good and outstanding schools are within reach. However, the area is classified as very deprived with above-average crime levels, so buyers should weigh neighbourhood factors against the low asking price.

This chain-free freehold presents clear scope for improvement and value uplift — suitable for first-time buyers prepared to renovate or investors targeting rental demand. Any purchaser should budget for modernisation (insulation, kitchen/bathroom updates) and check tenure details and safety certificates prior to exchange.

Property Details

Image Descriptions

Floorplan Description

Rooms

Textual Property Features

Target Audience

AI Tags

Detected Visual Features

EPC Details

Nearby Schools

Nearest Bars And Restaurants

,,,,}

Nearest General Shops

,,}

Nearest Grocery shops

,,}

Nearest Supermarkets

,,}

Nearest Religious buildings

,,}

Nearest Medical buildings

,,,}

Nearest Leisure Facilities

,,,,}

Nearest Tourist attractions

,,}

Nearest Train stations

,,,,}

Nearest Bus stations and stops

,,,,}

Nearest Hotels

,,}

Tags

Local Market Stats

AirBnB Data

Similar Properties

Meta

High Res Images

Compatible Images

Low res Images

Thumbnails

Raw Images

High Res Floorplan Images

Compatible Floorplan Images

Low res Floorplan Images

FloorplanImages Thumbnail

Raw Floorplan Images