Approved extension, large plot — blank canvas for investor or family remodel..
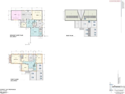
Approx 2,055 sqft now; potential to exceed 3,500 sqft with approved extension
Full planning permission approved (Ref: 23/02479/HSE) for large first-floor extension
Five bedrooms and three bathrooms; property has been gutted and needs full renovation
Freehold tenure; no flood risk; built circa 1980
Large 0.30-acre plot with mature trees, patio, small pond and privacy hedging
Double garage with power/lighting; driveway parking and separate workshop
Fast broadband, excellent mobile signal; very low local crime
Area notes: affluent suburb (Lisvane) but data flags “very deprived” in local stats
Set on a generous 0.30-acre, tree-lined plot in sought-after Lisvane, this modern detached home offers a rare development opportunity. The existing five-bedroom, three-bath layout across 2,055 sq ft provides immediate family accommodation while approved full planning (Ref: 23/02479/HSE) enables a large first-floor extension to create more than 3,500 sq ft of living space.
The house has been gutted by the current owner and requires comprehensive renovation—an ideal blank canvas for an investor or a buyer wanting to specify finishes throughout. The property includes a double garage with power and lighting, a workshop, driveway parking and mature rear gardens with patio, pond and raised beds.
Practical benefits include freehold tenure, no flood risk, fast broadband and excellent mobile signal. The location in Lisvane offers low crime levels and convenient access to schools, local amenities and transport links. Buyers should allow for significant refurbishment costs and project management time despite the advantage of planning already being in place.
This is best suited to developers, investors or an owner-occupier seeking a large family home they can remodel from the ground up. The approved planning removes a major hurdle; what remains is delivering and funding the renovation to realise the substantial uplift in space and value.
5 bedroom detached house for sale in Churchill Close, Lisvane, Cardiff, CF14 — £700,000 • 5 bed • 3 bath • 1948 ft²
4 bedroom detached house for sale in Lisvane Road, Lisvane, Cardiff(City), CF14 — £875,000 • 4 bed • 2 bath • 2722 ft²
4 bedroom detached house for sale in Little Beeches, Lisvane Road, Cardiff, CF14 — £1,200,000 • 4 bed • 1 bath • 1833 ft²
4 bedroom detached house for sale in Millrace Close, Lisvane, Cardiff, CF14 — £645,000 • 4 bed • 2 bath • 1502 ft²
5 bedroom house for sale in Mill Road, Llanishen, Cardiff, CF14 — £950,000 • 5 bed • 2 bath • 2764 ft²
3 bedroom house for sale in Fidlas Road, Cardiff, CF14 — £650,000 • 3 bed • 2 bath • 1895 ft²


































































