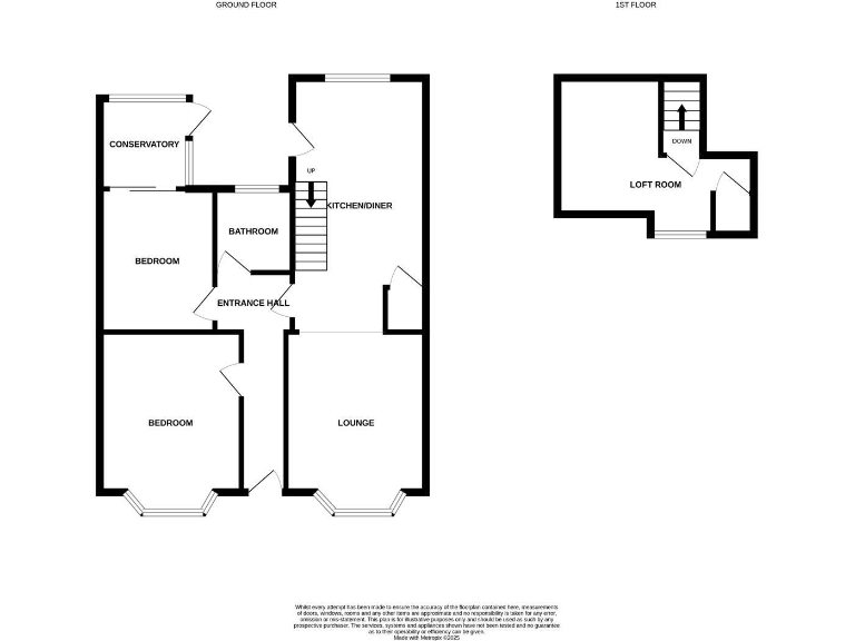
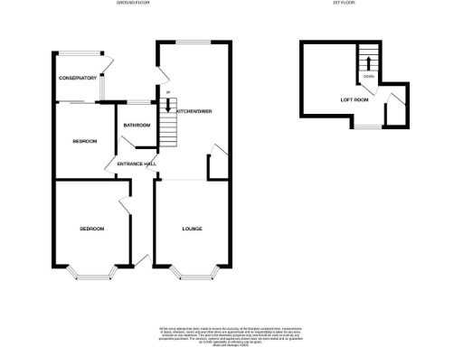
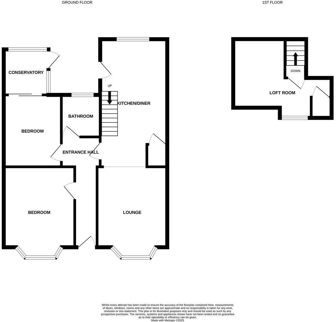
**Standout Features:**
- Extended semi-detached chalet bungalow with loft room
- Two bedrooms plus conservatory
- Spacious open-plan living area
- Large, well-maintained rear garden
- Front driveway for off-road parking
- Excellent condition with double glazing and gas heating
- Potential for renovation or customization in a popular suburb
This extended semi-detached chalet bungalow, perfectly nestled in the sought-after suburb of Hellesdon, offers a blend of comfort and potential. The property boasts an inviting entrance hall that leads to a luminous open-plan lounge and kitchen/diner, ideal for both entertaining and everyday living. Featuring two generously-sized bedrooms on the ground floor, a conservatory that enhances the living space, and a loft room upstairs, this home provides flexibility for families, first-time buyers, or those looking to downsize.
The large, mature garden is a standout feature, offering a private oasis for gardening enthusiasts or a serene spot for relaxation and outdoor gatherings. The property is well-maintained and benefits from double glazing and efficient gas heating, ensuring comfort year-round. Situated in an affluent area with excellent amenities and schools nearby, this home is perfect for anyone looking to enjoy suburban living without sacrificing city conveniences. Don’t miss out—properties in this desirable location are sure to attract attention!
4 bedroom chalet for sale in Bernham Road, Hellesdon, NR6 — £325,000 • 4 bed • 1 bath • 1120 ft²
3 bedroom semi-detached bungalow for sale in Hellesdon, NR6 — £280,000 • 3 bed • 2 bath • 1204 ft²
2 bedroom bungalow for sale in Neylond Crescent, Hellesdon, Norwich, Norfolk, NR6 — £325,000 • 2 bed • 1 bath • 1105 ft²
3 bedroom semi-detached house for sale in Hastings Avenue, Hellesdon, Norwich, Norfolk, NR6 — £350,000 • 3 bed • 2 bath • 1471 ft²
3 bedroom detached bungalow for sale in Neylond Crescent, Hellesdon, NR6 — £425,000 • 3 bed • 1 bath • 970 ft²
3 bedroom bungalow for sale in Samson Road, Hellesdon, Norwich, Norfolk, NR6 — £275,000 • 3 bed • 1 bath • 1061 ft²


























































