NN7 3RL - 2 bedroom semidetached house for sale in Grants Orchard, Bu…

View on Property Piper

2 bedroom semi-detached house for sale in Grants Orchard, Bugbrooke, NN7

Summary - 1 Grants Orchard, Bugbrooke, NORTHAMPTON NN7 3RL

2 bed 1 bath Semi-Detached

**Standout Features:**
- Charming two-bedroom semi-detached house
- Bright and spacious living room with patio doors
- Modern fitted kitchen with ample counter space
- Private rear garden, ideal for relaxation
- Two allocated parking spaces
- Located in the desirable village of Bugbrooke with low crime rates
- Close to local amenities, including schools and shops
- Affluent neighborhood with good transport links to A45 and M1

**Potential Concerns:**
- Property features a compact garden space
- Average-sized overall dimensions may limit expansion

**Summary:**
Discover your new home in the heart of Bugbrooke with this inviting two-bedroom semi-detached house, perfect for first-time buyers or small families seeking a blend of comfort and community. This well-presented residence showcases a bright lounge/diner that seamlessly flows into the modern kitchen, creating an ideal space for entertaining and daily living. Upstairs, two generous double bedrooms and a well-appointed bathroom provide ample accommodation, while the private rear garden offers a tranquil retreat.

Enjoy the benefits of off-street parking and an array of local amenities just a stone's throw away, including excellent schools, shops, and healthcare services. With strong transport links to major roads, this property provides convenient access to surrounding areas and the countryside, enhancing your lifestyle options. Don't miss out on this charming gem in a peaceful village setting—early viewings are encouraged!

Property Details

Brochure Descriptions

Image Descriptions

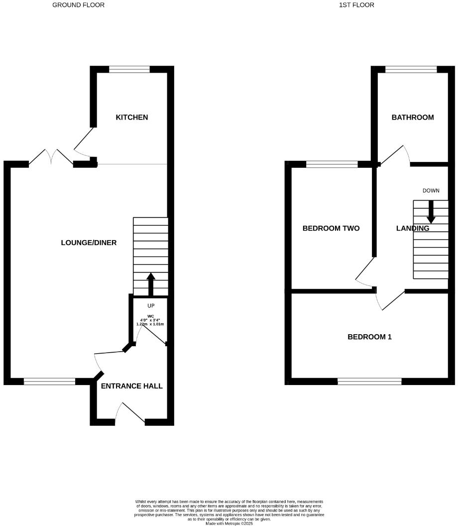
Floorplan Description

Rooms

Textual Property Features

Detected Visual Features

EPC Details

Nearby Schools

Nearest Bars And Restaurants

,,,,}

Nearest General Shops

,,}

Nearest Grocery shops

,,}

Nearest Supermarkets

,,}

Nearest Religious buildings

,,}

Nearest Medical buildings

,,,}

Nearest Leisure Facilities

,,,,}

Nearest Tourist attractions

,,}

Nearest Train stations

,,,,}

Nearest Bus stations and stops

,,,,}

Nearest Hotels

,,}

Tags

Local Market Stats

Similar Properties

Meta

High Res Images

Compatible Images

Low res Images

Thumbnails

Raw Images

High Res Floorplan Images

Compatible Floorplan Images

Low res Floorplan Images

FloorplanImages Thumbnail

Raw Floorplan Images