Exclusive village development beside the Trans-Pennine Trail for family living.
Contemporary four-bedroom detached house with open-plan kitchen layout
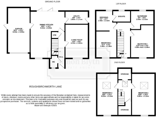
Set on a small, exclusive development beside the Trans-Pennine Trail, this four‑bedroom detached home combines contemporary design with practical family living. Built in stone with a slate roof, the house offers an open-plan ground floor, integral garage and gardens to front and rear, arranged over three storeys to maximise living space.
The specification is modern and well chosen: a Scandinavian-influenced fitted kitchen with integrated appliances, contemporary bathroom concepts, and quality fixtures throughout. The location suits families — several ‘Good’ rated primary and secondary schools are nearby, low local crime, fast broadband and easy road links to Leeds, Sheffield and Manchester.
Buyers should note the property is a new build currently under construction and the advertised interior photos are artist impressions. The developer has revised plans for the neighbouring plots: phase two will not proceed as originally planned and a communal green area will be created opposite the existing houses; purchasers will be offered the option to buy a share of that space and pricing has been adjusted to reflect the change.
Practical considerations include the three-storey layout, which may not suit limited mobility, and average mobile signal on site. Overall, this is a modern family home in a very affluent, semi-rural setting with strong local amenities and outdoor access.
4 bedroom detached house for sale in The Sycamore, Barley View, Oxspring, Sheffield, S36 — £470,000 • 4 bed • 3 bath • 1410 ft²
4 bedroom detached house for sale in The Cedar, Barley View, Oxspring, Sheffield, S36 — £520,000 • 4 bed • 2 bath • 1561 ft²
4 bedroom detached house for sale in The Sycamore, Barley View, Oxspring, Sheffield, S36 — £460,000 • 4 bed • 3 bath • 1410 ft²
4 bedroom detached house for sale in The Sycamore, Barley View, Oxspring, Sheffield, S36 — £490,000 • 4 bed • 3 bath • 1410 ft²
4 bedroom detached house for sale in The Cedar, Barley View, Oxspring, Sheffield, S36 — £525,000 • 4 bed • 2 bath • 1561 ft²
4 bedroom detached house for sale in The Birch, Barley View, Oxspring, Sheffield, S36 — £535,000 • 4 bed • 2 bath • 1507 ft²






























