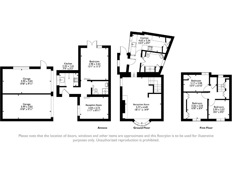
Victorian cottage with annexe, large south-facing garden and renovation potential.
- Four bedrooms plus self-contained one-bedroom annexe
A substantial Victorian-era semi-detached home in the heart of Whissendine, offered chain free and ready for sympathetic renovation. The main house retains character: exposed beams, an open fireplace and a bay window with built-in seating, while a fully equipped one-bedroom annexe provides flexible accommodation for guests, a dependent relative or rental income.
Set on a generous plot of roughly a quarter of an acre, the south-facing rear garden is private and well established, with a patio, timber pergola and raised vegetable beds. Practical assets include a tarmac driveway with ample off-street parking and a double garage. Mains gas central heating, double glazing and all mains services are connected.
The property is best for buyers seeking a renovation project who value village life and strong local schools. Construction is traditional ironstone/sandstone with assumed no wall insulation; the house will benefit from modernisation throughout, including updating the kitchen and bathrooms and likely insulation and energy-efficiency improvements.
Important practical notes: the home requires renovation and improvement works; council tax sits above average (Band E) and the site sits in a medium flood-risk area. These factors should be considered alongside the clear potential to create a comfortable family home or a house-plus-annexe arrangement in a desirable Rutland village close to Oakham and Melton Mowbray.
3 bedroom semi-detached house for sale in Stanilands, Whissendine, LE15 — £275,000 • 3 bed • 1 bath • 777 ft²
4 bedroom detached house for sale in Hall Close, Whissendine, LE15 — £699,950 • 4 bed • 3 bath • 2843 ft²
5 bedroom semi-detached house for sale in Main Street, Whissendine, Oakham, Rutland, LE15 — £725,000 • 5 bed • 3 bath • 3162 ft²
3 bedroom semi-detached house for sale in Stanilands, Whissendine, LE15 — £325,000 • 3 bed • 1 bath • 837 ft²
4 bedroom semi-detached house for sale in Station Road, Whissendine, Oakham, LE15 — £630,000 • 4 bed • 2 bath • 1884 ft²
5 bedroom detached house for sale in Mount Pleasant Hill, Whissendine, Oakham, LE15 — £1,100,000 • 5 bed • 4 bath • 2576 ft²










































