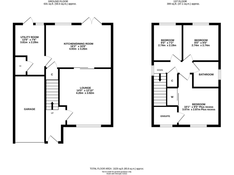
Well-presented family home with garage and spacious kitchen diner.
Detached three-bedroom family home on a quiet cul-de-sac
High-quality fitted kitchen with patio doors to rear garden
Master bedroom with en-suite; two further double bedrooms
Off-street parking for two plus integral garage
Utility room and ground-floor WC for practical living
Total internal size c.882 sq ft — modest for some buyers
Freehold tenure; no flooding risk and low local crime
Close to good schools, amenities and excellent transport links
Set on a quiet cul-de-sac in Haughton, this neatly presented three-bedroom detached home suits a growing family seeking practical, comfortable living. The front lounge and generous kitchen/diner create flexible living and entertaining space, while a handy utility and ground-floor WC add everyday convenience.
The master includes an en-suite and two further double bedrooms share a modern family bathroom. Off-street parking for two and an integral garage provide secure vehicle space; the rear garden and decent plot offer outdoor room for children and pets. The kitchen is a standout feature, fitted to a high standard and opening onto the garden via large patio doors.
Positioned close to good local schools, amenities and strong transport links, the house works well for school runs and commuting. Broadband and mobile signal are strong, and the local area records low crime. The property is freehold and presents as well maintained, ready for immediate occupation.
Buyers should note the overall internal size is modest (around 882 sq ft), which may feel limited for those needing extensive living space. The area is classified as ageing urban communities — while well served, some buyers may prefer more contemporary neighbourhoods. No flooding risk has been identified.
3 bedroom detached house for sale in Truro Close, Darlington, Durham, DL1 — £210,000 • 3 bed • 2 bath • 687 ft²
3 bedroom semi-detached house for sale in Iris Grove, Darlington, County Durham, DL1 — £190,000 • 3 bed • 2 bath • 956 ft²
3 bedroom semi-detached house for sale in Spinning Close, Darlington, DL1 — £175,000 • 3 bed • 2 bath • 1055 ft²
3 bedroom detached house for sale in Polperro Grove, Darlington, DL3 — £255,000 • 3 bed • 2 bath • 962 ft²
3 bedroom detached house for sale in Idaho Gardens, Darlington, DL1 — £260,000 • 3 bed • 1 bath • 1589 ft²
3 bedroom detached house for sale in Truro Close, Darlington, DL1 2XF, DL1 — £210,000 • 3 bed • 2 bath • 1029 ft²






























































































