Low‑maintenance family living with garage and two parking spaces.
Three bedrooms with main en‑suite and fitted wardrobes
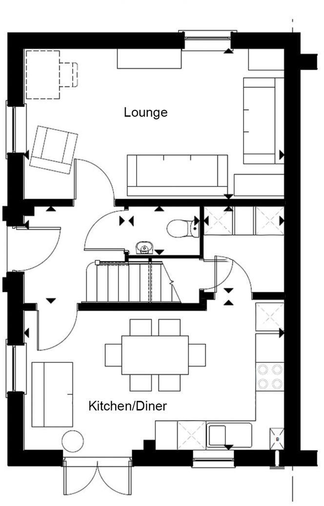
Bright, practical living across two floors makes this modern detached house well suited to families. Built in 2021, the home feels current and low‑maintenance with a spacious kitchen/diner, integrated appliances and a useful utility room. Double doors open from the kitchen to a landscaped rear garden with patio and pergola — a pleasant space for children and outdoor entertaining. The main bedroom includes fitted wardrobes and an en‑suite, with two further bedrooms served by a family bathroom.
Outside there is off‑street parking for two cars and a detached garage with power and lighting, plus side access into the garden. The property sits on a decent plot with a modest front lawn and paved driveway. Benson village amenities and good local schools are within walking distance, while the town‑fringe setting gives easy access to surrounding countryside.
Practical points to note: internal space is average for a three‑bed home, and the front garden is modest. Council tax falls above average for the area. The property is freehold, mains gas‑heated with good broadband and mobile signal, and presents as a ready‑to‑move‑into family home rather than a major renovation project.
4 bedroom detached house for sale in Boteler Gardens, Benson, OX10 — £530,000 • 4 bed • 2 bath • 999 ft²
3 bedroom semi-detached house for sale in Blacklands Road, Benson, OX10 — £365,000 • 3 bed • 1 bath • 669 ft²
4 bedroom detached house for sale in China Piece, Benson, Wallingford, Oxfordshire, OX10 — £675,000 • 4 bed • 3 bath • 2101 ft²
3 bedroom semi-detached house for sale in Benson, South Oxfordshire, OX10 — £475,000 • 3 bed • 2 bath • 1260 ft²
4 bedroom detached house for sale in Restwald Close, Benson, OX10 — £535,000 • 4 bed • 2 bath • 999 ft²
3 bedroom detached bungalow for sale in Westfield Road, Benson, OX10 — £475,000 • 3 bed • 1 bath • 1079 ft²


















































































