YO30 6BU - 4 bed period city townhouse in Burton Stone Lane, YO30 6BU

View on Property Piper

4 bedroom terraced house for sale in Burton Stone Lane, York, YO30

Summary - 28 BURTON STONE LANE YORK YO30 6BU

4 bed 3 bath Terraced

Renovated Victorian townhouse near York city centre — character, space and commuter convenience.
Newly renovated while retaining original Victorian features
This Victorian mid-terrace on Burton Stone Lane blends original period character with a thorough recent renovation. High ceilings, sash windows, decorative cornicing and fireplaces give the house strong visual appeal, while the large rear dining-kitchen with Aga provides a sociable family hub and excellent entertaining space.

Arranged over three floors, the home offers flexible accommodation — a bay-fronted lounge, separate reception/ study and four double bedrooms including a generous top-floor bedroom with en-suite. A small forecourt and private rear paved garden with well-stocked borders suit low-maintenance family life in the city centre.

Positioned half a mile from York city centre and within walking distance of the railway station, the house benefits from fast broadband, excellent mobile signal and frequent local amenities. The area combines affluent streets with nearby student neighbourhoods and convenient commuter links, giving strong potential for family occupation or city-centre rental.

Buyers should note some important practical points: the plot and gardens are small (typical city-centre terrace), council tax band E (above average) applies, and the brochure references two bathrooms whereas images and room counts indicate three — confirm exact bathroom count and layout during viewing. EPC is listed as TBC; prospective purchasers should seek the current certificate and check service records following the renovation.

Property Details

Brochure Descriptions

Image Descriptions

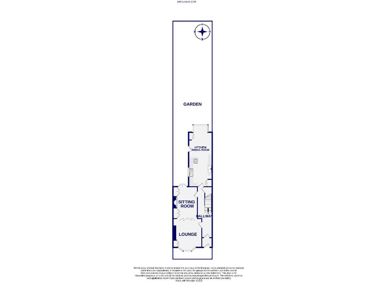
Floorplan Description

Rooms

Textual Property Features

Target Audience

AI Tags

Detected Visual Features

Nearby Schools

Nearest Bars And Restaurants

,,,,}

Nearest General Shops

,,}

Nearest Grocery shops

,,}

Nearest Supermarkets

,,}

Nearest Religious buildings

,,}

Nearest Medical buildings

,,,}

Nearest Airports

}

Nearest Leisure Facilities

,,,,}

Nearest Tourist attractions

,,}

Nearest Train stations

,,,,}

Nearest Bus stations and stops

,,,,}

Nearest Hotels

,,}

Tags

Local Market Stats

AirBnB Data

Similar Properties

Meta

High Res Images

Compatible Images

Low res Images

Thumbnails

Raw Images

High Res Floorplan Images

Compatible Floorplan Images

Low res Floorplan Images

FloorplanImages Thumbnail

Raw Floorplan Images