Renovated two-bedroom terrace near York centre with courtyard and loft room.
Fully renovated throughout with modern kitchen and fittings
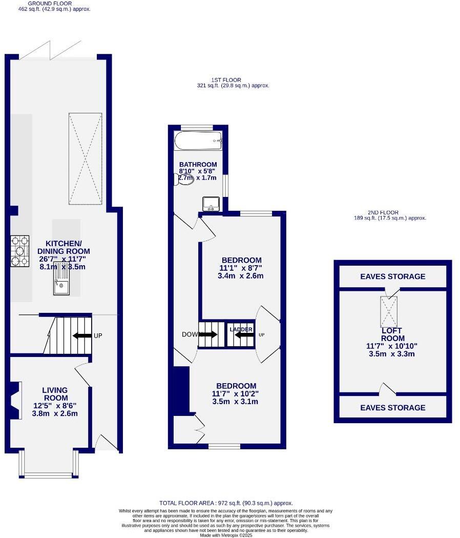
This newly renovated two-bedroom Victorian terrace sits within easy walking distance of York city centre, combining period character with contemporary finishes. The front living room retains a bay window and log burner, while the extended open-plan kitchen/dining/living area benefits from a roof lantern and bi-fold doors that open onto a private rear courtyard. A loft room offers flexible extra space, currently used as a cinema room.
The property is presented to a high standard throughout with blue shaker kitchen units, quartz worktops, integrated appliances and a useful understairs utility area plumbed for a ground-floor WC. Two generous double bedrooms and a well-appointed three-piece bathroom occupy the first floor. Broadband speeds and mobile signal are strong, and the house is freehold with a low council tax band (Band B).
Practical considerations: the plot is small with a compact rear courtyard rather than a larger garden, and the location records above-average local crime levels. EPC is listed as TBC. On-street parking is typical for this type of terrace and should be expected rather than allocated off-street parking. The property’s combination of size, location and finishes will suit first-time buyers, couples, or investors seeking strong rental potential in a popular student and professional neighbourhood.
 2 bedroom terraced house for sale in Hawthorn Street, York, YO31 — £270,000 • 2 bed • 1 bath • 696 ft²
 2 bedroom terraced house for sale in Hawthorn Street, York, YO31 — £270,000 • 2 bed • 1 bath • 696 ft² 2 bedroom terraced house for sale in Abbey Street, Clifton Green, York, YO30 — £425,000 • 2 bed • 1 bath • 1034 ft²
 2 bedroom terraced house for sale in Abbey Street, Clifton Green, York, YO30 — £425,000 • 2 bed • 1 bath • 1034 ft² 2 bedroom terraced house for sale in Allan Street, York, YO30 — £225,000 • 2 bed • 1 bath • 584 ft²
 2 bedroom terraced house for sale in Allan Street, York, YO30 — £225,000 • 2 bed • 1 bath • 584 ft² 2 bedroom terraced house for sale in Nunmill Street, York, YO23 1NU, YO23 — £400,000 • 2 bed • 2 bath • 800 ft²
 2 bedroom terraced house for sale in Nunmill Street, York, YO23 1NU, YO23 — £400,000 • 2 bed • 2 bath • 800 ft² 2 bedroom terraced house for sale in Ashville Street, Off Huntington Road, York, YO31 — £210,000 • 2 bed • 1 bath • 474 ft²
 2 bedroom terraced house for sale in Ashville Street, Off Huntington Road, York, YO31 — £210,000 • 2 bed • 1 bath • 474 ft² 2 bedroom terraced house for sale in Cleveland Street, York, YO24 — £325,000 • 2 bed • 1 bath • 760 ft²
 2 bedroom terraced house for sale in Cleveland Street, York, YO24 — £325,000 • 2 bed • 1 bath • 760 ft²






























































