Large three-bed family home with big garden and loft potential.
Extremely large internal area — 1,802 sq ft across multi-storey layout
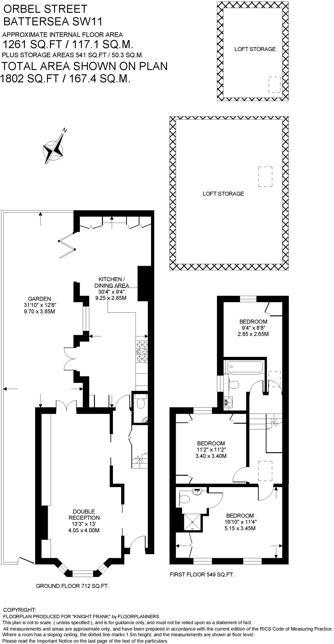
A bright, spacious three-bedroom Victorian semi on Orbel Street, offering generous room sizes across a wide 1,802 sq ft footprint and a large rear garden with established planting and irrigation. High ceilings, a bay-fronted living room and a modern kitchen/dining area with bifold doors create a comfortable family layout with good natural light. The principal bedroom includes fitted wardrobes and an en suite; a contemporary family bathroom serves the other bedrooms. Loft storage is substantial and could be converted subject to planning permission to add further living space.
The property is well placed for family life: quiet tree-lined street in the popular Sisters neighbourhood, under half a mile from Battersea Park and within easy reach of Battersea Power Station, Clapham Junction links and local schools including Thomas’s Battersea. Broadband speeds and mobile signal are strong, and the house is freehold with mains gas central heating and double glazing already installed.
Buyers should note there are some practical considerations: the solid-brick walls are likely uninsulated and the glazing dates from before 2002, so energy efficiency could be improved. Council tax is described as quite expensive, and local crime levels are above average. The house presents clear scope to add value through insulation upgrades, interior modernisation and a loft conversion if planning consent is granted.
This home suits families seeking a roomy, characterful base in inner Battersea with outdoor space and strong transport links, or buyers looking for a period property with straightforward improvement potential and sizeable plot to personalise.
3 bedroom terraced house for sale in Orbel Street, London, SW11 — £1,350,000 • 3 bed • 1 bath • 1159 ft²
3 bedroom semi-detached house for sale in Orbel Street, London, United Kingdom, SW11 — £1,500,000 • 3 bed • 2 bath • 1425 ft²
4 bedroom semi-detached house for sale in Orbel Street, London, SW11 — £1,675,000 • 4 bed • 3 bath • 1669 ft²
4 bedroom detached house for sale in Orbel Street, London, SW11 — £1,200,000 • 4 bed • 1 bath • 1081 ft²
4 bedroom semi-detached house for sale in Henning Street, London, SW11 — £1,550,000 • 4 bed • 3 bath • 1886 ft²
3 bedroom semi-detached house for sale in Orbel Street, London, SW11 — £1,500,000 • 3 bed • 2 bath • 1439 ft²










































































