**Key Features:**
- Victorian-era semi-detached property in conservation area
- Three generously-sized bedrooms
- Subject to usual consents for kitchen extension and loft conversion
- Well-stocked garden offering outdoor leisure space
- Excellent mobile signal and fast broadband
- Close to shops, restaurants, and transport links including Clapham Junction
- Above-average crime rate
- No insulation in solid brick walls
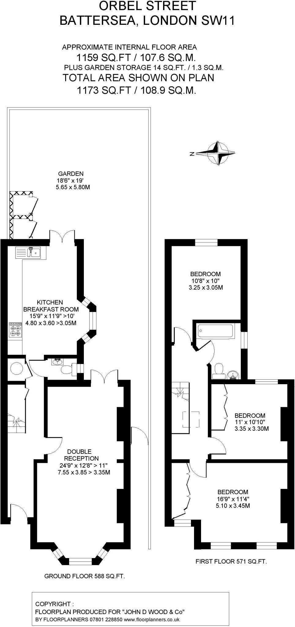
This charming Victorian terraced house, located in the desirable Sisters conservation area of Battersea, perfectly blends period character with modern potential. Boasting three spacious bedrooms, this well-proportioned 1,159 square foot home invites you to indulge in its high ceilings and classic features such as a beautiful bay window and original fireplace. Outside, a quaint garden awaits, ideal for serene afternoons or family gatherings.
Enjoy the convenience of local shops and eateries while being just a stone's throw from effective transport links. With approved planning permissions for a kitchen side return and loft conversion, there's ample opportunity to customize and expand to fit your family's needs. While the home comes with no insulation, potentially requiring updates, its prime location in an inner-city cosmopolitan area with access to top-rated schools makes it an attractive prospect for families and investors alike. Seize the opportunity to add your mark to this Victorian gem—properties like this are in high demand and won't last long!
3 bedroom semi-detached house for sale in Orbel Street, London, United Kingdom, SW11 — £1,500,000 • 3 bed • 2 bath • 1425 ft²
3 bedroom terraced house for sale in Worfield Street, London, SW11 — £1,550,000 • 3 bed • 2 bath • 1567 ft²
4 bedroom detached house for sale in Orbel Street, London, SW11 — £1,200,000 • 4 bed • 1 bath • 1081 ft²
3 bedroom semi-detached house for sale in Orbel Street, London, SW11 — £1,500,000 • 3 bed • 2 bath • 1439 ft²
3 bedroom terraced house for sale in Shuttleworth Road, London, SW11 — £885,000 • 3 bed • 1 bath • 1081 ft²
4 bedroom semi-detached house for sale in Orbel Street, London, SW11 — £1,675,000 • 4 bed • 3 bath • 1669 ft²










































