Substantial plot and outbuildings for a hands-on family buyer.
Approximately 15 acres of land and paddock potential
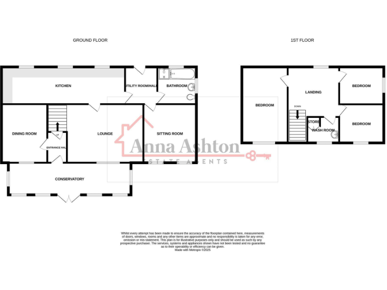
Set on approximately 15 acres on the edge of Golden Grove, this detached period house offers rare scope for a rural lifestyle or smallholding. The main house includes three reception rooms, a conservatory, and three bedrooms — generous room count across 1,562 sq ft for family living. Multiple useful outbuildings and a sizable barn provide immediate storage, workshop space or potential conversion subject to planning.
The property is a clear refurbishment project: exterior paint and roof show wear, internal fixtures and finishes are dated, and the home requires modernization throughout. Heating is by LPG and a septic tank serves the site; purchasers should budget for ongoing running costs and any upgrades to services. There is only one main bathroom and council tax is above average.
Practical positives include off-street parking, mains electricity and water, and a long-established layout with flexible reception rooms. Former use as a pet rescue means some outbuildings are already configured for animal or workspace needs. Drawbacks to note: broadband speeds are very slow, the area is classified as very deprived, and there is no EPC recorded — buyers should allow for refurbishment, possible service works and confirm planning or building consents for any conversions.
For a family or buyer seeking space and privacy, this property offers genuine long-term potential: a large, secluded plot, rural views and adaptable buildings. It will best suit someone comfortable with a renovation project who values land and seclusion more than immediate turnkey condition.
3 bedroom smallholding for sale in Llanfynydd, Carmarthen, SA32 — £365,000 • 3 bed • 1 bath
Land for sale in Blaenycoed, Carmarthen, SA33 — £525,000 • 5 bed • 1 bath • 2738 ft²
6 bedroom detached house for sale in Cimla, Neath, SA11 — £450,000 • 6 bed • 6 bath • 3021 ft²
4 bedroom detached house for sale in Llanfynydd Road, Carmarthen, SA32 — £399,000 • 4 bed • 2 bath • 2064 ft²
6 bedroom smallholding for sale in Trelech, Carmarthen, SA33 — £865,000 • 6 bed • 3 bath • 1933 ft²
3 bedroom smallholding for sale in 7.23 acres St. Clears, Carmarthen, SA33 — £425,000 • 3 bed • 2 bath • 1097 ft²














































































































































































































