High-spec, energy-efficient family living with garage and fast EV charging.
Four double bedrooms including a principal suite with walk-in wardrobe
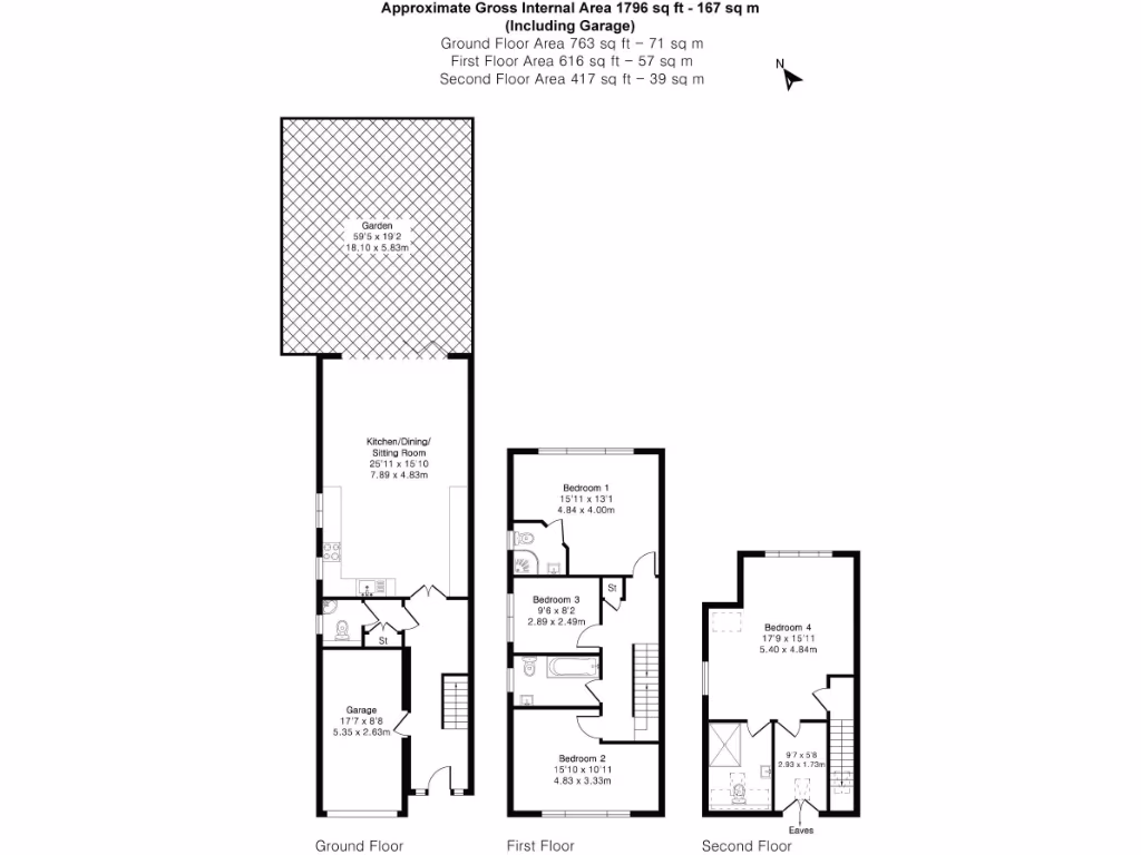
A high-spec, newly built four-bedroom semi-detached home on Laleham Road, arranged over three floors for modern family living. The open-plan ground floor features a bespoke kitchen with granite/quartz worktops, premium NEFF appliances, central island and bifold doors that flow to a private rear garden with a porcelain tiled raised patio and planted borders. Practical extras include an integral garage, two off-street parking spaces and a separate utility with ground-floor WC.
Energy-efficient features are strong: a Joule air source heat pump, underfloor heating to the ground floor, LED lighting, and a Zappi 22kW EV charger are provided. The property is sold freehold with a PROTEK 10-year structural warranty, offering reassurance for buyers wanting near-new construction and low-maintenance finishes.
The first and second floors provide flexible sleeping accommodation with three luxury bathrooms/en suites, including a principal suite with a walk-in wardrobe. The house is suited to busy professionals or growing families who value location — fast broadband, good local schools and direct commuter links into central London.
Notable points to check: records list mains gas and a boiler as well as the air source heat pump, so buyers should confirm the exact heating and hot-water arrangement. Council tax banding is not provided. The property footprint is described as average overall, so buyers seeking very large internal room sizes should view to confirm space against the 1,796 sq ft total.
4 bedroom semi-detached house for sale in Laleham Road, Staines-upon-Thames, Surrey, TW18 — £750,000 • 4 bed • 3 bath • 1796 ft²
4 bedroom detached house for sale in Sidney Road, Staines-upon-Thames, Surrey, TW18 — £965,000 • 4 bed • 3 bath • 1852 ft²
4 bedroom detached house for sale in Laleham Road, Staines, Surrey, TW18 — £900,000 • 4 bed • 2 bath • 1776 ft²
4 bedroom end of terrace house for sale in Gloucester Crescent, Staines-upon-Thames, TW18 — £650,000 • 4 bed • 3 bath • 2012 ft²
4 bedroom detached house for sale in Ferry Avenue, Staines-upon-Thames, TW18 — £750,000 • 4 bed • 2 bath • 1772 ft²
4 bedroom semi-detached house for sale in Langley Road, Staines-upon-Thames, Surrey, TW18 — £730,000 • 4 bed • 2 bath • 1307 ft²










































































































































































