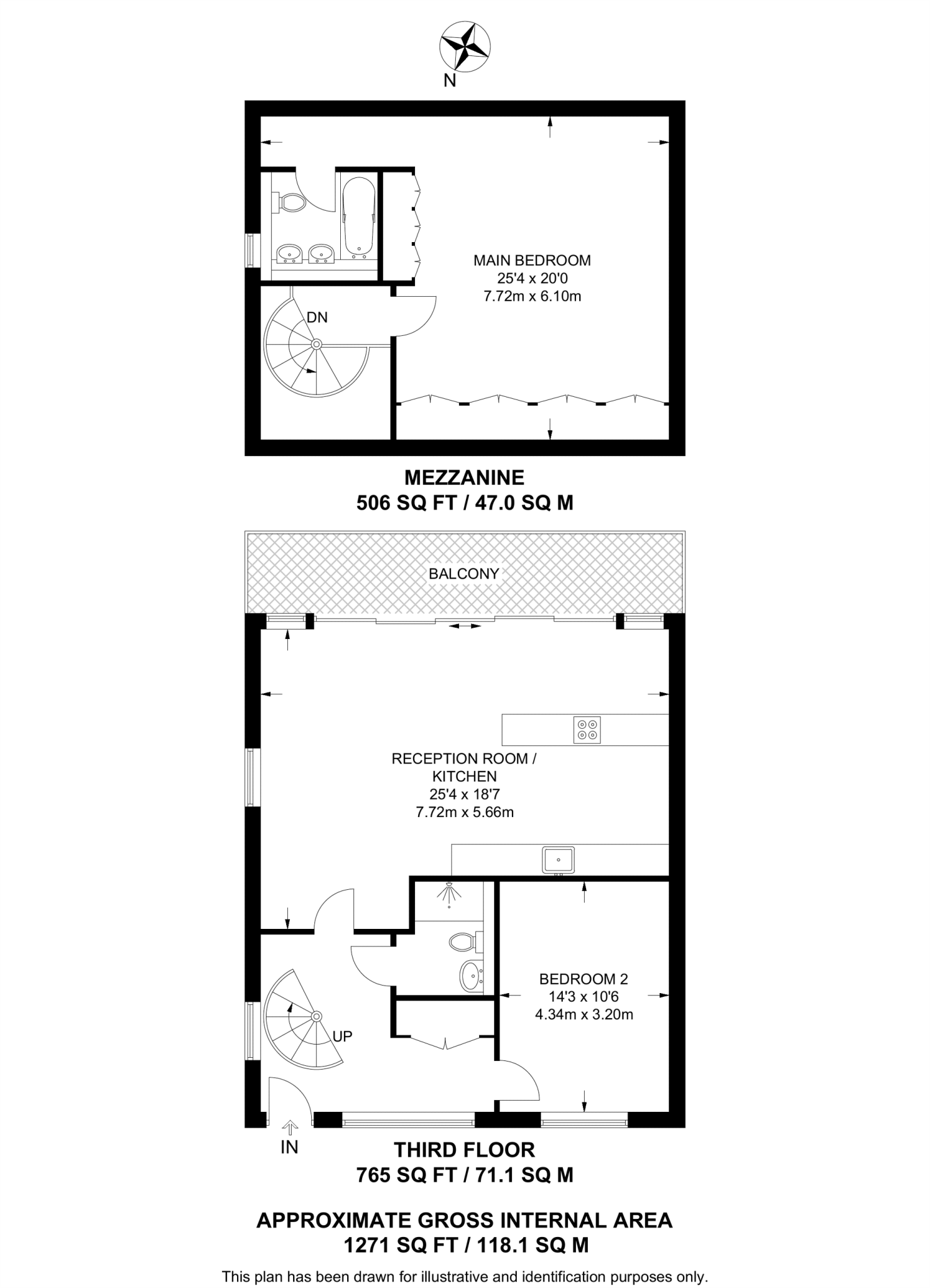
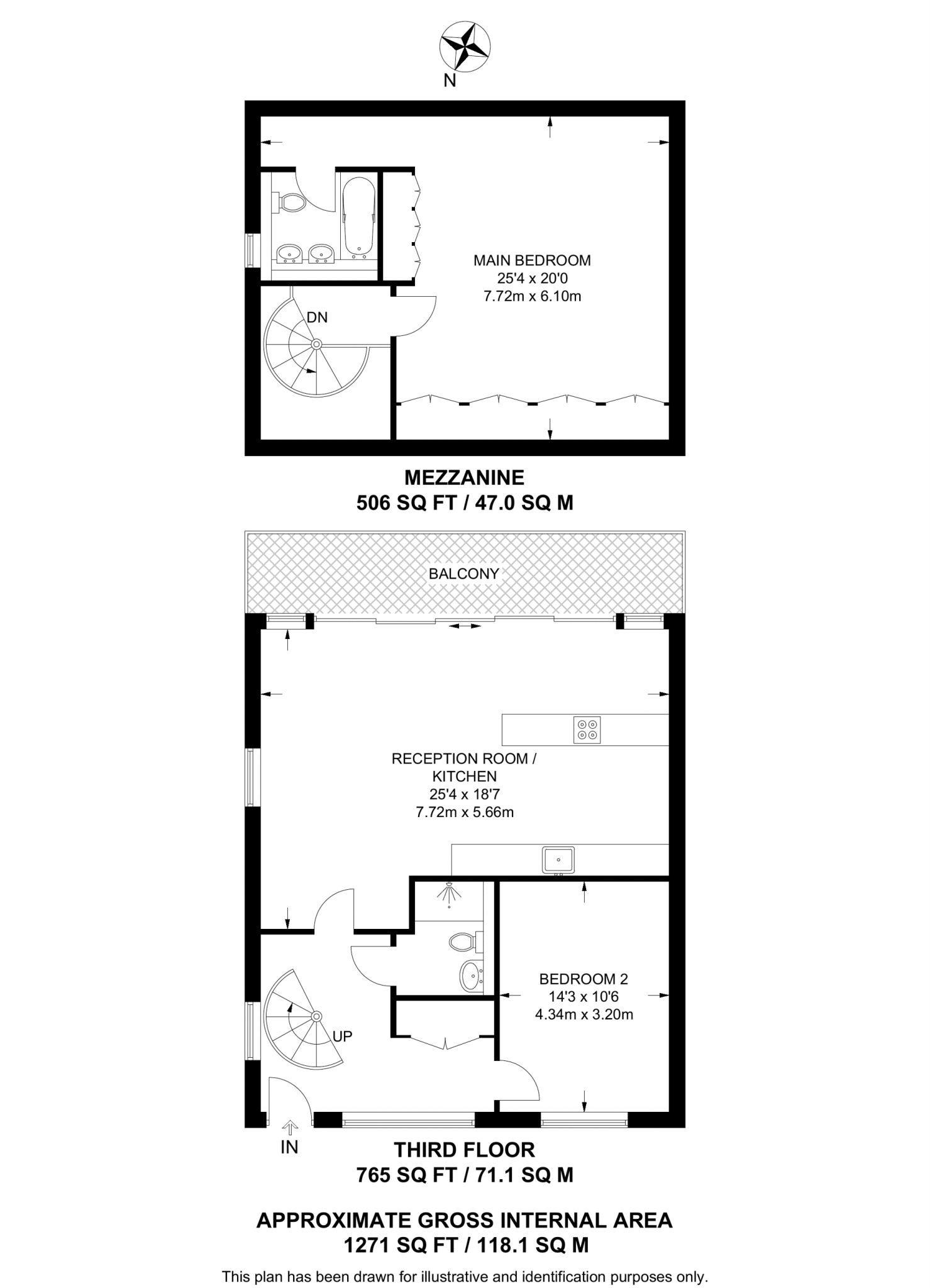
Large two-bedroom home with mezzanine and balcony near the Thames and Clapham Junction.
- Very large 1,271 sq ft two-bedroom apartment, light-filled and airy
- Double-height reception with mezzanine main bedroom for dramatic volume
- Private balcony; seconds from the Thames Path and riverside walks
- Built 2003–2006 with double glazing and gas central heating
- Close to Clapham Junction and local amenities, excellent transport links
- Leasehold with c.101 years remaining; sold at auction (prior purchase available)
- Annual service charge approx £3,994 and ground rent £458
- Third-floor location (access arrangements not specified)
A striking two-bedroom apartment within a converted candle factory, offering exceptional space and natural light across an unusually large 1,271 sq ft layout. The living area benefits from double-height ceilings and large windows, with a mezzanine main bedroom that maximises the sense of volume. A private balcony faces the riverside quarter and the Thames Path is moments away, making this a rare inner-city home with easy access to riverside walks.
The property sits on the third floor and features an open-plan kitchen/living space, two bathrooms and contemporary finishes throughout. Built between 2003–2006, the building retains character while providing modern comforts such as double glazing and gas central heating. Clapham Junction and Wandsworth Town are within easy reach for shopping and transport links.
Practical matters to note: the flat is leasehold with approximately 101 years remaining and will be sold at auction (prior purchase available). Annual costs average a service charge of £3,994 and a ground rent of £458. Flood risk is very low and local crime levels are low, but buyers should factor the auction process and ongoing service charges into their purchase decision.
Overall, this apartment will suit buyers seeking roomy, characterful accommodation near the Thames — particularly first-time purchasers who value space, light and strong local amenities rather than a turnkey suburban house.
Studio flat for sale in Candlemakers Apartments, 112 York Road, London, SW11 — £750,000 • 1 bed • 1 bath • 1271 ft²
2 bedroom flat for sale in Oyster Wharf, Battersea, London, SW11 — £410,000 • 2 bed • 1 bath • 627 ft²
2 bedroom flat for sale in Bridges Court Road, Battersea, SW11 — £525,000 • 2 bed • 1 bath • 742 ft²
2 bedroom flat for sale in Oyster Wharf, Lombard Road, London, SW11 — £410,000 • 2 bed • 1 bath • 627 ft²
2 bedroom apartment for sale in Candlemakers Apartments, 112 York Road, London, SW11 — £600,000 • 2 bed • 2 bath • 818 ft²
2 bedroom flat for sale in Lombard Wharf, Lombard Road, Battersea, London, SW11 — £850,000 • 2 bed • 1 bath • 779 ft²


































































