Bright third-floor home near Thames Path and Battersea Park — auction sale with recently extended lease.
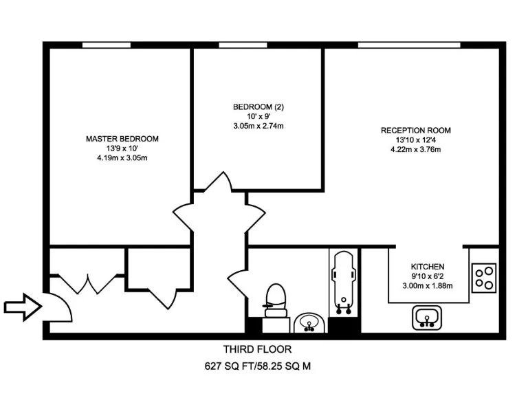
Third-floor flat with lift access and bright reception area
Set on the third floor with lift access, this bright two-bedroom flat offers a well-proportioned reception room with space to dine and a semi-open-plan kitchen. Both bedrooms are good-sized doubles and the property benefits from a recently extended lease and an EPC rating of B.
The location is a genuine asset: Thames Path riverside walks, Battersea Park and Battersea Square’s shops and restaurants are within easy reach, while Clapham Junction provides strong transport links. The flat includes a small private garden and sits in a modern development built in the mid-2000s.
Practical considerations: the home uses electric storage heating and electric underfloor heating, which can be higher running cost compared with gas. There is a single bathroom and council tax is above average. The property will be sold at online auction, so buyers should review legal documents and tenancy details in advance and be prepared for the auction process.
This property suits a first-time buyer seeking close-in London living with riverside access, or an investor looking for straightforward layout and lease length advantages following the recent extension. View early to assess condition and running costs before bidding.
2 bedroom flat for sale in Oyster Wharf, 18 Lombard Road, London, SW11 — £430,000 • 2 bed • 2 bath • 744 ft²
2 bedroom flat for sale in Oyster Wharf, Battersea, London, SW11 — £410,000 • 2 bed • 1 bath • 627 ft²
2 bedroom flat for sale in Oyster Wharf, Battersea, London, SW11 — £430,000 • 2 bed • 1 bath • 744 ft²
2 bedroom flat for sale in Candlemakers Apartments, 112 York Road, London, SW11 — £750,000 • 2 bed • 2 bath • 1271 ft²
3 bedroom flat for sale in Coda Residences, York Place, London, SW11 — £1,250,000 • 3 bed • 2 bath • 1015 ft²
2 bedroom flat for sale in Dwyer House,Townmead Road, London, SW6 — £450,000 • 2 bed • 1 bath • 789 ft²






















































