**Standout Features:**
- Development site with full planning permission for 3 affordable housing units.
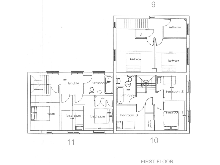
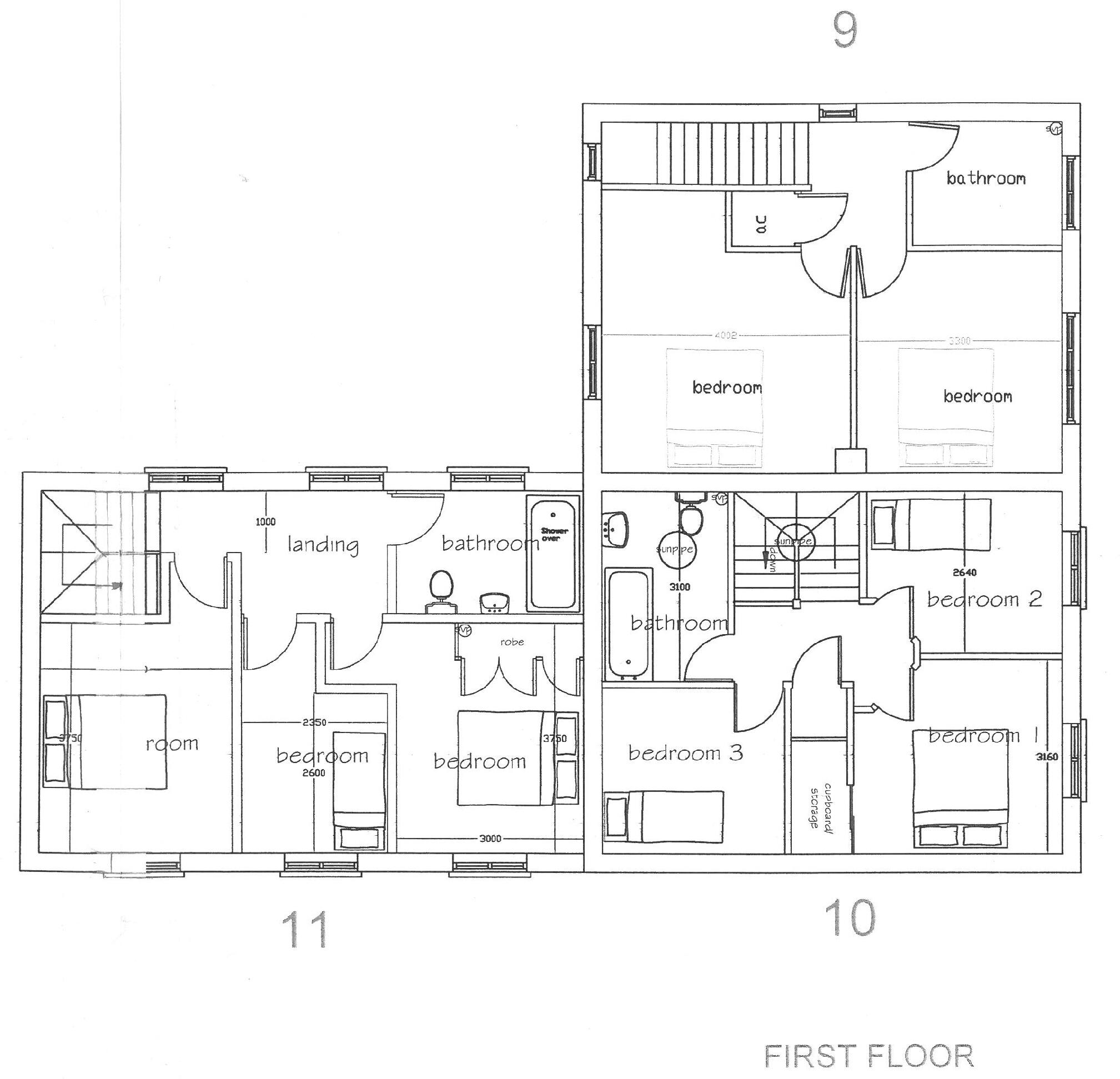
- Corner terrace design featuring two 3-bedroom homes and one 2-bedroom home.
- Located in the charming rural village of Llanfihangel Talyllyn, Brecon.
- Surrounded by picturesque countryside with views of the Brecon Beacons National Park.
- Low crime area and supportive community amenities including a village pub, church, and hall.
**Potential Downsides:**
- Area classified as "very deprived," which may affect local economic conditions.
- Mobile phone signal is average, and although broadband speeds are fast, it may not cater to all connectivity needs.
This is an ideal opportunity for small-scale developers looking to create charming homes in a peaceful rural setting. The approved design for a corner terrace of three affordable units allows for immediate development, positioning you advantageously within a burgeoning village community. Imagine the potential of two spacious 3-bedroom homes and a cozy 2-bedroom unit right near the heart of Llanfihangel Talyllyn, a village bursting with character, including local amenities just a short walk away.
The tranquil environment benefits from natural surroundings, while the proximity to local schools makes it a family-friendly choice for future residents. With planning permission already in place and the building features offering a modern aesthetic, this plot is brimming with potential. Act quickly, as opportunities for development in such scenic locations are hard to come by!
Land for sale in Plot 8, Maes Maldwyn, Llanddew, Brecon, Powys, LD3 — £60,000 • 1 bed • 1 bath
Land for sale in Land next to St Tetti's Church, Llandetty, Brecon, LD3 — £89,995 • 1 bed • 1 bath
Land for sale in Brecon, Powys, LD3 — £30,000 • 1 bed • 1 bath
Land for sale in Brecon, Powys, LD3 — £530,000 • 1 bed • 1 bath
Land for sale in Land on the West Side Of Forge Road, Llangynidr, Crickhowell, NP8 1LX, NP8 — £2,000 • 1 bed • 1 bath • 2954 ft²
3 bedroom barn conversion for sale in Heolas Farm, Bwlch, Powys, LD3 — £350,000 • 3 bed • 3 bath • 1045 ft²






































