Well-advanced barn conversion in Brecon Beacons, ready for final fit-out and personal touches.
Full planning permission for three-bedroom conversion
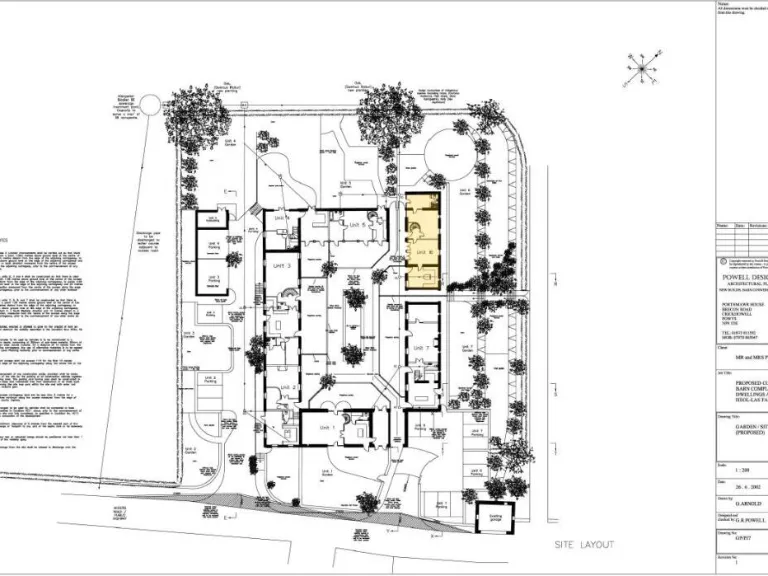
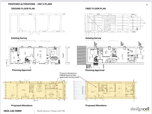
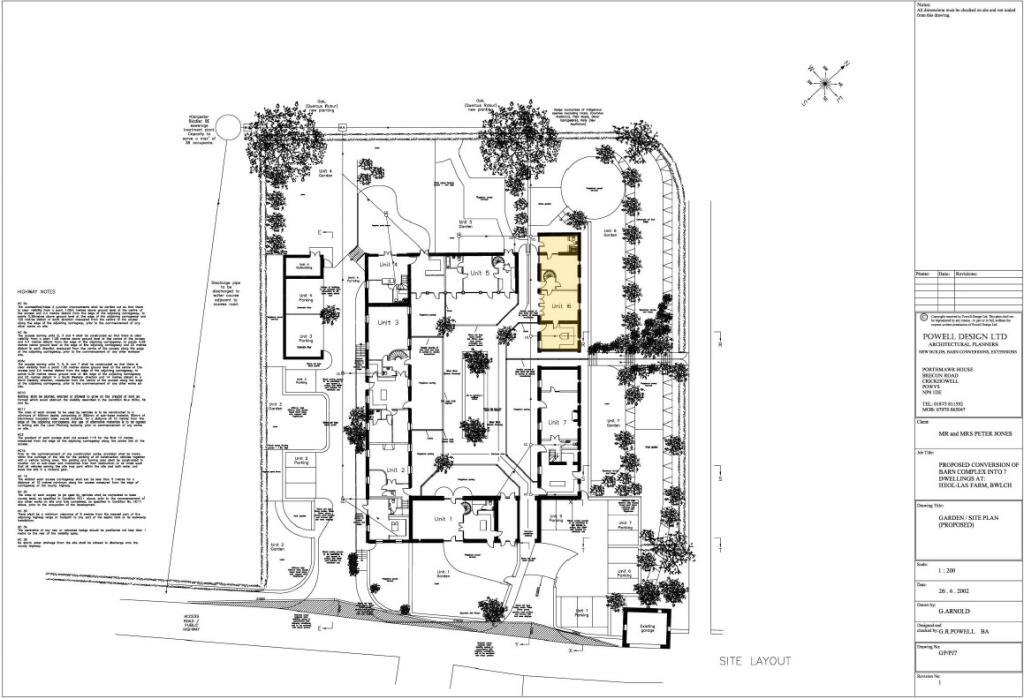
A rare barn conversion with full planning permission already approved for a three-bedroom family home, set within the Brecon Beacons National Park. Much of the heavy groundwork is complete: a new roof, structural works, services laid on, internal blockwork and drainage in place — leaving the final fit-out and finishes for the new owner to personalise.
The property sits in a small, established farming community between Abergavenny and Crickhowell, with countryside walks and wildlife on the doorstep. The courtyard setting provides three allocated parking spaces, a defined garden area and a prepared footprint for the planned living-room extension. On-site materials (insulation, steelwork and lintels) reduce initial purchase and build costs.
This opportunity suits a buyer seeking a bespoke rural home or a renovation investor who can complete the conversion to the approved plans. Be aware the barn still needs significant internal completion and finishing trades to make it habitable; viewing is recommended to appreciate the scale and remaining work.
Practical considerations: the property is freehold, about 1,045 sq ft, low local crime and excellent mobile/broadband, but it sits in a very deprived local area and council tax is described as quite expensive. Its remoter village location offers tranquillity but will involve longer journeys for daily amenities.
3 bedroom barn conversion for sale in Cathedine, Brecon, Powys., LD3 — £650,000 • 3 bed • 2 bath • 1485 ft²
4 bedroom barn conversion for sale in Pencelli, Brecon, Powys, LD3 — £725,000 • 4 bed • 2 bath • 1962 ft²
3 bedroom detached house for sale in Cathedine, Brecon, LD3 — £535,000 • 3 bed • 2 bath • 2076 ft²
4 bedroom detached house for sale in Cwmyoy, Abergavenny, NP7 — £825,000 • 4 bed • 2 bath • 2407 ft²
Barn for sale in Cilyronnen Barn, Llandefalle, Brecon, LD3 0NS, LD3 — £150,000 • 1 bed • 1 bath
4 bedroom semi-detached house for sale in Pencelli, Brecon, Powys, LD3 — £825,000 • 4 bed • 3 bath • 2261 ft²


































































































































































