Spacious five-bedroom house with huge grounds and coastal walking nearby.
Approximately 6.5 acres of mature gardens and mixed native woodland
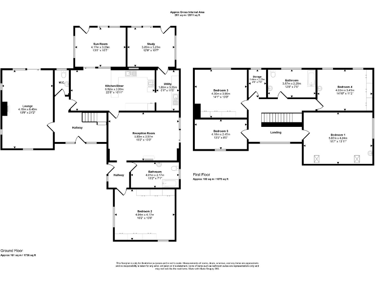
Set within approximately 6.5 acres of mature gardens and established mixed woodland, this five-bedroom detached house is aimed at families who want space, privacy and easy access to the coast. The grounds include walkways, a stream along the northern boundary and a well-developed native wood planted forty years ago that supports abundant wildlife. The house offers flexible living with four reception rooms, an open-plan kitchen/diner, two sun rooms and potential to form an annex for multi-generational use.
Practical positives include a detached garage/workshop, generous driveway parking and UPVC double glazing. The property is a countryside retreat with walking distance to Hazel Beach and convenient drive-time access to Neyland and Milford Haven for schools, shops and marina facilities. The huge plot gives scope for small-scale outbuildings or further garden development, subject to planning.
Buyers should note some material drawbacks: the EPC is rated D, heating is oil-fired (with some electric room heaters also noted), and the property was constructed before 1900 with granite walls that appear uninsulated. Gardens are extensive but partly uncared and will need ongoing management. Council Tax is Band G, and broadband and mobile signal are average in this rural location. Any garage/workshop conversion would require the necessary permissions.
7 bedroom detached house for sale in Cosheston, Pembroke Dock, Pembrokeshire, SA72 — £675,000 • 7 bed • 2 bath • 2518 ft²
6 bedroom detached house for sale in Llawhaden, Narberth, Pembrokeshire, SA67 — £600,000 • 6 bed • 3 bath • 3197 ft²
4 bedroom country house for sale in Login, Whitland, SA34 — £545,000 • 4 bed • 1 bath • 2697 ft²
Land for sale in The Rhos, Haverfordwest, SA62 — £550,000 • 5 bed • 4 bath • 2253 ft²
5 bedroom detached house for sale in Freshwater East, Pembroke, SA71 — £800,000 • 5 bed • 3 bath • 2651 ft²
6 bedroom detached house for sale in Woodcocks Wells & Woodberry Cottage, Carmarthen Road, Kilgetty, SA68 — £875,000 • 6 bed • 4 bath • 2706 ft²






































































































































































































