Substantial gardens and flexible accommodation near sandy coastal beaches.
Self-contained two-bedroom annex ideal for income or multi-generational use
Approximately 0.84 acre mature gardens with mini golf and multiple seating areas
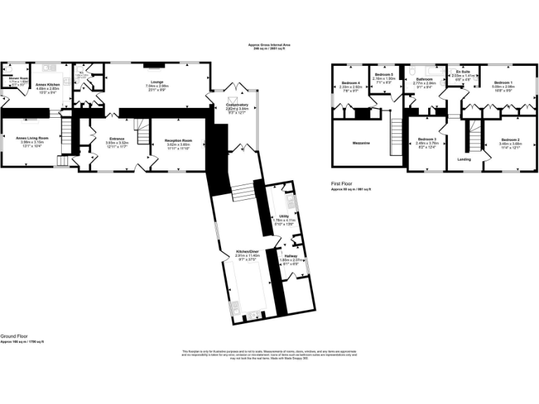
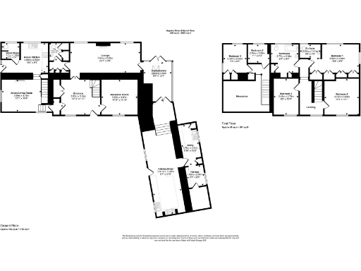
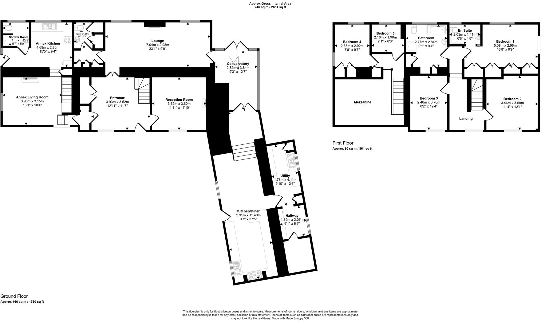
Five bedrooms, three bathrooms, character features and exposed beams
Two garages, double carport and numerous outbuildings; ample parking
Six-minute drive to Freshwater East beach; inside Pembrokeshire Coast National Park
EPC rating D; oil-fired boiler heating, main fuel oil (not community)
Broadband speeds slow; council tax band above average
Wider area shows higher deprivation; some rooms require updating/refurbishment
Set within about 0.84 acres of mature gardens, this five-bedroom country house combines period character with practical modern living. Exposed beams, stone walls and two wood-burning stoves create a warm, authentic atmosphere while a bright sunroom and a spacious kitchen/diner provide family-focused everyday spaces. A self-contained two-bedroom annex, accessed from the main hallway, offers genuine flexibility for multigenerational living or an income-producing holiday let.
Outside, the grounds are a major asset: lawns, established trees, seating areas, a mini golf course, two garages, a double carport and numerous outbuildings deliver extensive storage and outdoor possibilities. The property sits in a quiet village within Pembrokeshire Coast National Park and is about a six-minute drive from Freshwater East beach, making it attractive for coastal leisure and short-term rental demand.
Practical points to note: heating is by oil-fired boiler to radiators, the EPC rating is D, and broadband speeds are reported as slow. Council Tax sits above average and the wider area shows higher levels of deprivation, which may affect long-term local services. The house presents clear refurbishment and modernisation potential in places but is structurally sound with double glazing and recent construction elements.
This is a strong option for families seeking countryside space close to the coast or buyers looking for a rental/holiday-let opportunity thanks to the self-contained annex and substantial grounds. Viewings recommended to appreciate the scale, character and income potential alongside any updating needs.
6 bedroom detached house for sale in Redberth, SA70 — £499,000 • 6 bed • 3 bath • 1541 ft²
5 bedroom detached house for sale in Stepaside, Narberth, SA67 — £700,000 • 5 bed • 3 bath • 991 ft²
6 bedroom detached house for sale in Clarbeston Road, SA63 — £800,000 • 6 bed • 1 bath • 3348 ft²
5 bedroom detached house for sale in Penffordd, Clynderwen, Pembrokeshire, SA66 — £470,000 • 5 bed • 2 bath • 2299 ft²
4 bedroom link detached house for sale in Castlemartin, Pembroke, Pembrokeshire, SA71 — £325,000 • 4 bed • 2 bath • 880 ft²
3 bedroom detached house for sale in Hundleton, Pembroke, Pembrokeshire, SA71 — £625,000 • 3 bed • 2 bath • 1443 ft²










































































































































































































































































































