**Standout Features:**
- Extended 3-bedroom semi-detached house
- Off-street parking with potential driveway
- Light-flooded kitchen overlooking the garden
- Sought-after, quiet neighborhood
- Proximity to schools, transport, and local amenities like ASDA and BANG BANG Oriental food hall
- Freehold tenure provides long-term security
**Potential Concerns:**
- Requires modernization and updates, including decor
- Cavity walls may need insulation for energy efficiency
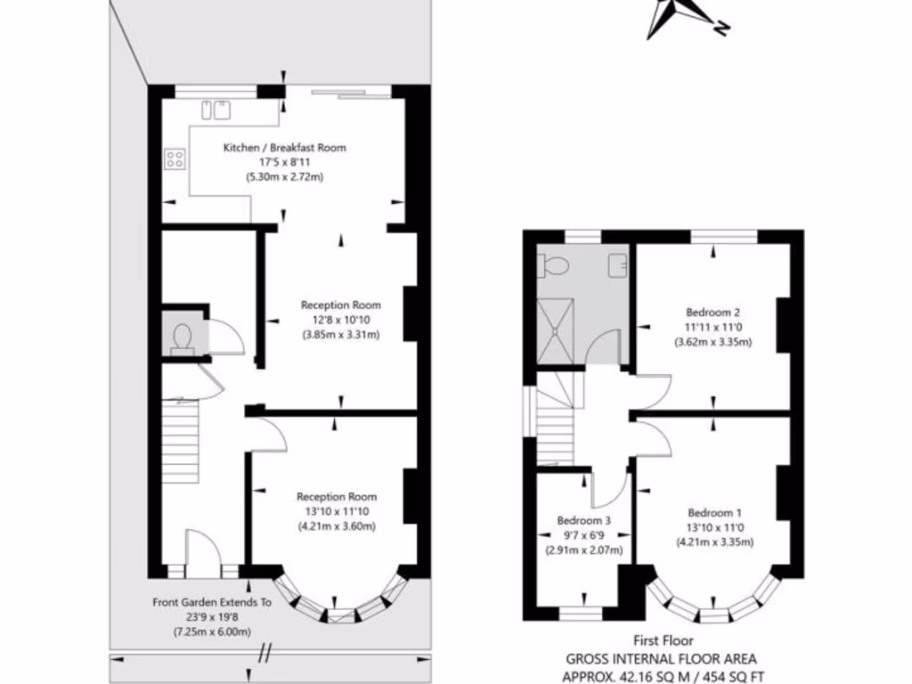
Experience the charm and potential of this extended 3-bedroom semi-detached house nestled in a quiet, multicultural neighborhood. With a traditional red brick facade and ample natural light pouring through semi-bay windows, this home offers a warm suburban retreat. The living spaces include a compact living room, a cozy lounge, and a spacious kitchen that overlooks a private garden, perfect for family gatherings or entertaining.
Upstairs, find three comfortable bedrooms and a family bathroom, catering well to moderate-sized families. The property does require modernization, presenting a unique opportunity for savvy buyers to create their ideal living space tailored to taste and functionality.
Convenience is key here, with schools rated 'Good' by Ofsted within reach, as well as local groceries and dining options, making it perfect for young families and first-time buyers. Don’t miss your chance to personalize this classic home and secure a great investment in a growing community. Act fast, as properties with this potential are in high demand!
3 bedroom semi-detached house for sale in Fairfields Close, Kingsbury, London, NW9 — £650,000 • 3 bed • 2 bath • 1173 ft²
3 bedroom semi-detached house for sale in Sheaveshill Avenue, Colindale, London, NW9 — £600,000 • 3 bed • 1 bath • 1073 ft²
3 bedroom terraced house for sale in Lavender Avenue, Kingsbury, London, NW9 — £575,000 • 3 bed • 1 bath • 956 ft²
3 bedroom terraced house for sale in Byron Avenue, Kingsbury, London, NW9 — £615,000 • 3 bed • 1 bath • 1397 ft²
3 bedroom semi-detached house for sale in Stuart Avenue, London, NW9 — £600,000 • 3 bed • 2 bath • 1276 ft²
3 bedroom semi-detached house for sale in Vivian Avenue, Wembley, HA9 — £625,000 • 3 bed • 2 bath • 1135 ft²






















































































