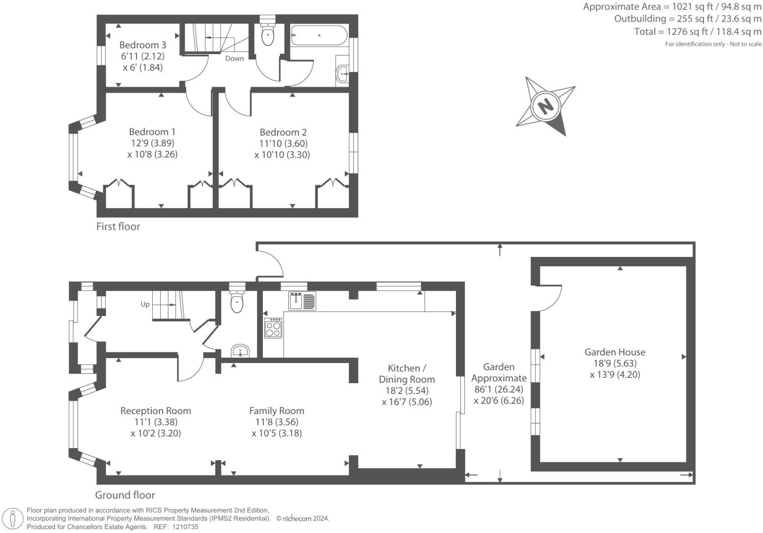
**Standout Features:**
- Chain-free semi-detached home
- 3 spacious bedrooms and 2 bathrooms
- Family-friendly layout with living/dining room
- Rear garden and front driveway for convenient parking
- Outhouse ideal for home office or storage
- Potential for extension to enhance living space
**Summary:**
Discover the perfect family home in NW9 7AT, offering ample living space within its 1276 sqft layout. This charming 3-bedroom semi-detached house boasts a cozy lounge and dining area, complemented by a rear garden—perfect for outdoor gatherings or leisure. The modern kitchen features white cabinets and wooden countertops, radiating style and functionality.
With potential for extension, this property allows you to customize and create your dream space. While the area exhibits above-average crime rates and a need for modernization, its excellent mobile signal and a variety of nearby amenities—including schools, diverse dining options, and shops—provide answers for family living. With a moderate council tax and a freehold tenure, this property represents a fantastic opportunity, especially for first-time buyers or investors seeking future flexibility. Don’t miss out on this exclusive chance to settle in a community teeming with potential.
3 bedroom semi-detached house for sale in Stuart Avenue, NW9 — £600,000 • 3 bed • 1 bath • 980 ft²
4 bedroom semi-detached house for sale in Colin Close, NW9 — £600,000 • 4 bed • 1 bath
3 bedroom semi-detached house for sale in Fairfields Close, Kingsbury, London, NW9 — £650,000 • 3 bed • 2 bath • 1173 ft²
3 bedroom semi-detached house for sale in Ajax Avenue, NW9 — £550,000 • 3 bed • 1 bath • 883 ft²
4 bedroom semi-detached house for sale in Tavistock Avenue, Mill Hill, NW7 — £899,950 • 4 bed • 2 bath • 2674 ft²
3 bedroom semi-detached house for sale in Sturgess Avenue, Hendon, NW4 — £540,000 • 3 bed • 1 bath • 840 ft²


















































































