Refurbished 1930s semi with south-facing garden, garage and easy city access..
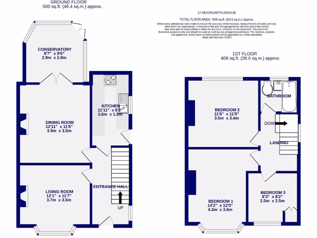
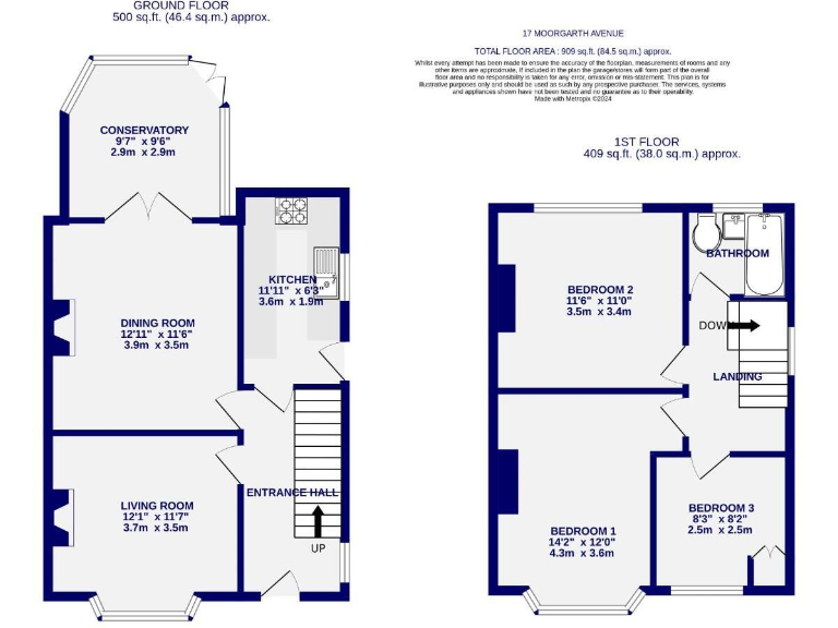
Three bedrooms plus two reception rooms and conservatory
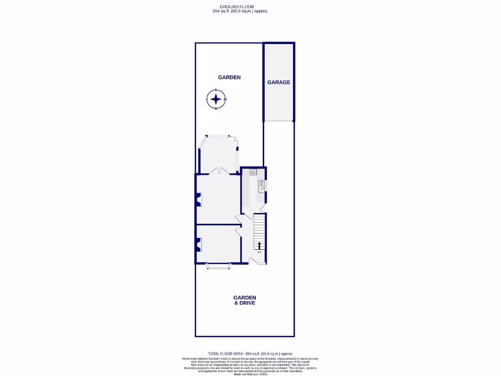
Set just south of York city centre, this tastefully refurbished 1930s semi delivers comfortable family living with excellent local schools and transport links. The ground floor offers two reception rooms and a conservatory that opens onto a south-facing, walled garden — ideal for child play and year-round light. A modern kitchen and driveway plus single garage provide useful everyday practicality and off-street parking for several vehicles.
Upstairs are three bedrooms and a single family bathroom; the accommodation suits growing families or professionals wanting easy access to the city and station. The property has been recently modernised, with updated fixtures and décor, but retains its traditional bay-window character and standard ceiling heights.
Practical points to note: the EPC is D and the original cavity walls are assumed to have no added insulation, so there is scope to improve energy efficiency. The plot is relatively small and there is one bathroom — factors to consider for larger families. Overall, this is a well-presented, freehold family home in a very affluent, low-risk area, ready to be enjoyed with further potential to enhance comfort and running costs.
3 bedroom semi-detached house for sale in Slingsby Grove, York, YO24 — £450,000 • 3 bed • 1 bath • 813 ft²
3 bedroom semi-detached house for sale in Tostig Avenue, York, YO26 — £290,000 • 3 bed • 1 bath • 1006 ft²
4 bedroom semi-detached house for sale in Anderson Grove, York, YO24 — £425,000 • 4 bed • 2 bath • 961 ft²
3 bedroom semi-detached house for sale in 23, Nunthorpe Grove York, YO23 1DT, YO23 — £550,000 • 3 bed • 1 bath • 1357 ft²
3 bedroom semi-detached house for sale in Irwin Avenue, York, YO31 — £500,000 • 3 bed • 1 bath • 1243 ft²
3 bedroom semi-detached house for sale in The Horseshoe, Tadcaster Road, York YO24 1LY, YO24 — £850,000 • 3 bed • 1 bath • 1273 ft²






























































































