EX39 5JL - Hospitality facility for sale in The Manor Country Estate,…

View on Property Piper

Hospitality facility for sale in The Manor Country Estate, EX39

Summary - BEACONSIDE MONKLEIGH BIDEFORD EX39 5JL

1 bed 1 bath Hospitality

Large, income-producing country estate with barn, cabins, pools and secured RHI income..
Average c. £700k turnover per annum
25 acres including river frontage and ancient woodland
300sqm purpose-built barn; licensed until 1am
9 luxury woodland cabins and 4 self-contained cottages
Indoor and solar-heated outdoor pools with changing facilities
RHI biomass income £30,000 pa for next 10 years
Parking for c.60 cars; sleeps 19 in main house
Broadband very slow; tenure status unknown; active management required
A rare, income-producing country estate set across 25 acres, The Manor combines a Victorian manor house, purpose-built 300sqm barn and diversified holiday accommodation. The business currently averages c. £700k turnover per year and benefits from a fully licensed bar and multiple indoor/outdoor event spaces suitable for weddings and functions. A biomass heating system attracts confirmed RHI payments of £30,000 pa for the next ten years.

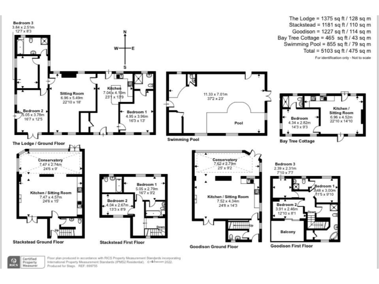
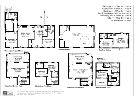
Accommodation and guest product include a grand 1841 manor house (9 bedrooms, six en-suite), four self-contained cottages, and nine luxury woodland cabins set within 14 acres of ancient woodland. Guest amenities feature a 7 x 4m indoor pool with changing facilities, a 10 x 4m solar-heated outdoor pool and parking for approximately 60 cars. The Beacon barn provides flexible events space for 100+ covers, commercial kitchen, CCTV and licensed operation until 1am.

This is an investor-ready operation with clear growth and diversification potential (additional cabins, private hot tubs, expanded outdoor ceremony capacity). Key strengths are the size of the estate, established wedding/restaurant income stream, river frontage, and long-term RHI income.

Material considerations: the estate is a complex, operational hospitality business that requires active management and capital investment for maintenance and guest services. Broadband speeds are very slow, mobile signal average, and legal tenure is listed as unknown — these practical issues affect operation, marketing and modern guest expectations. Period fabric (built 1841) will also require ongoing maintenance.

Property Details

Image Descriptions

Floorplan Description

Rooms

Textual Property Features

Target Audience

AI Tags

Detected Visual Features

Nearby Schools

Nearest Bars And Restaurants

,,,,}

Nearest General Shops

,,}

Nearest Grocery shops

,,}

Nearest Supermarkets

,,}

Nearest Religious buildings

,,}

Nearest Medical buildings

,,,}

Nearest Leisure Facilities

,,,,}

Nearest Tourist attractions

,,}

Nearest Train stations

,,,,}

Nearest Bus stations and stops

,,,,}

Nearest Hotels

,,}

Tags

Local Market Stats

AirBnB Data

Similar Properties

Meta

High Res Images

Compatible Images

Low res Images

Thumbnails

Raw Images

High Res Floorplan Images

Compatible Floorplan Images

Low res Floorplan Images

FloorplanImages Thumbnail

Raw Floorplan Images